home page > Annunci immobiliari in Italia > Toscana > Grosseto > Massa Marittima > Negozi uffici capannoni in vendita > Scheda immobile

Negozi uffici capannoni in vendita a Massa Marittima

COMPILA IL MODULO SOTTOSTANTE PER RICEVERE MAGGIORI INFORMAZIONI







Invia la richiesta ad altre agenzie
Accetto il trattamento dei miei dati



Atrium immobiliare

Via marconi
58023 Gavorrano (GR)

0566844623

Massa Marittima
Prezzo: € 55.000
60



Descrizione:
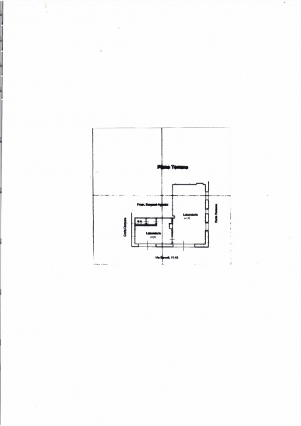
Massa marittima, vendesi ampio laboratorio con bagno, attualmente suddiviso in due stanze più bagno, per circa 60 mq in buono stato di manutenzione. E' possibile richiedere il cambio di destinazione d'uso in civile abitazione.maggiori info in agenzia classe energetica = esente




Caratteristiche immobile:
Codice inserzione: 1771976144
Rif. Annuncio: 294
Provincia: Grosseto
Comune: Massa Marittima
Superficie (Mq) : 60 Mq.
Tipo immobile: Negozi uffici capannoni

Costi:
Prezzo € 55.000


Efficienza energetica: