home page > Annunci immobiliari in Italia > Toscana > Livorno > Cecina > appartamenti in vendita > Scheda immobile

Appartamento in vendita a Cecina

COMPILA IL MODULO SOTTOSTANTE PER RICEVERE MAGGIORI INFORMAZIONI







Invia la richiesta ad altre agenzie
Accetto il trattamento dei miei dati



Toscanacasa

Piazza carducci 24-25
57023 Cecina (LI)

3457858899    0586630591

Cecina
Prezzo: € 166.300
3
145
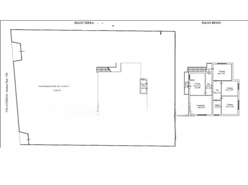
Piano terra



Descrizione:
In asta vendesi casa indipenente con corte esclusiva e terreni agricoli.l'immobile è situato in posizione tranquilla tra cecina e la località la california, facilmente raggiungibile dalla strada statale aurelia,la casa si sviluppa su due piani fuori terra:- al piano primo si trova l'abitazione principale composta da ingresso, cucina con balcone, soggiorno, tre camere da letto e bagno, con riscaldamento autonomo.- al piano terra, con accesso diretto dalla corte, sono presenti due locali ad uso rimessa/deposito, oltre a locali accessori. Completano la proprietà un ripostiglio con forno a legna e un locale tecnico.la corte esclusiva misura circa 840 mq ed è in parte pavimentata.sono inclusi inoltre due appezzamenti di terreno agricolo contigui, per una superficie complessiva di circa 1,5 ettari, in parte seminativi e in parte ad uso orto.soluzione ideale per chi cerca indipendenza, spazi esterni e contesto rurale, a breve distanza dai principali servizi e dal mare._____________________________________________________________toscana casa - revita srl asta etica1. Per ogni asta assistiamo 1 solo cliente senza mettere più partecipazioni in concorrenza tra loro.2. Non partecipiamo ad aste in cui il proprietario è interessato a riacquistare il suo immobile.3. Quando possibile acquistiamo prima dell'asta cancellando il pignoramento e tutti i debiti dell'esecutato. (fattibilità da valutare caso per caso attraverso analisi attenta della documentazione)scopri tutti i nostri servizi:- analisi tecnica, contabile e legale per un acquisto mirato ed in totale sicurezza.- calcolo dettagliato e trasparente di tutti i costi che dovrai sostenere.- consulenza per l'ottenimento del mutuo (in molti casi anche fino al 100%).- valutazione della possibilità di acquisto prima dell'asta in accordo con il proprietario.- presentazione e assistenza burocratica nella partecipazione all'asta (solo per 1 cliente).- ti aiutiamo anche dopo l'asta: decreto di trasferimento, liberazione dell'immobile fino alla consegna delle chiavi.-------contattaci per una consulenza gratuita e per ricevere tutte le informazioni di cui hai bisogno.(nota bene: le immagini hanno solo scopo illustrativo e potrebbero non corrispondere agli immobili reali. Tutti i dati pubblicati saranno verificati e confermati durante la consulenza). Classe energetica: non indicata




Caratteristiche immobile:
Codice inserzione: 1767672882
Rif. Annuncio: RA-1Aurelia
Provincia: Livorno
Comune: Cecina
Superficie (Mq) : 145 Mq.
Tipo immobile: Appartamento
Piano: Piano terra
Camere: 3

Costi:
Prezzo € 166.300


Efficienza energetica: