home page > Annunci immobiliari in Italia > Toscana > Livorno > Cecina > Case e ville a schiera in vendita > Scheda immobile

Case e ville a schiera in vendita a Cecina

COMPILA IL MODULO SOTTOSTANTE PER RICEVERE MAGGIORI INFORMAZIONI







Invia la richiesta ad altre agenzie
Accetto il trattamento dei miei dati



Europa agenzia immobiliare

Piazza garibaldi, 76
57016 Rosignano Marittimo (LI)

0586788119    3342290901    Riferimenti: Goffredo Gattai

Cecina
Prezzo: € 345.000
3
2
120
Piano terra
1



Descrizione:
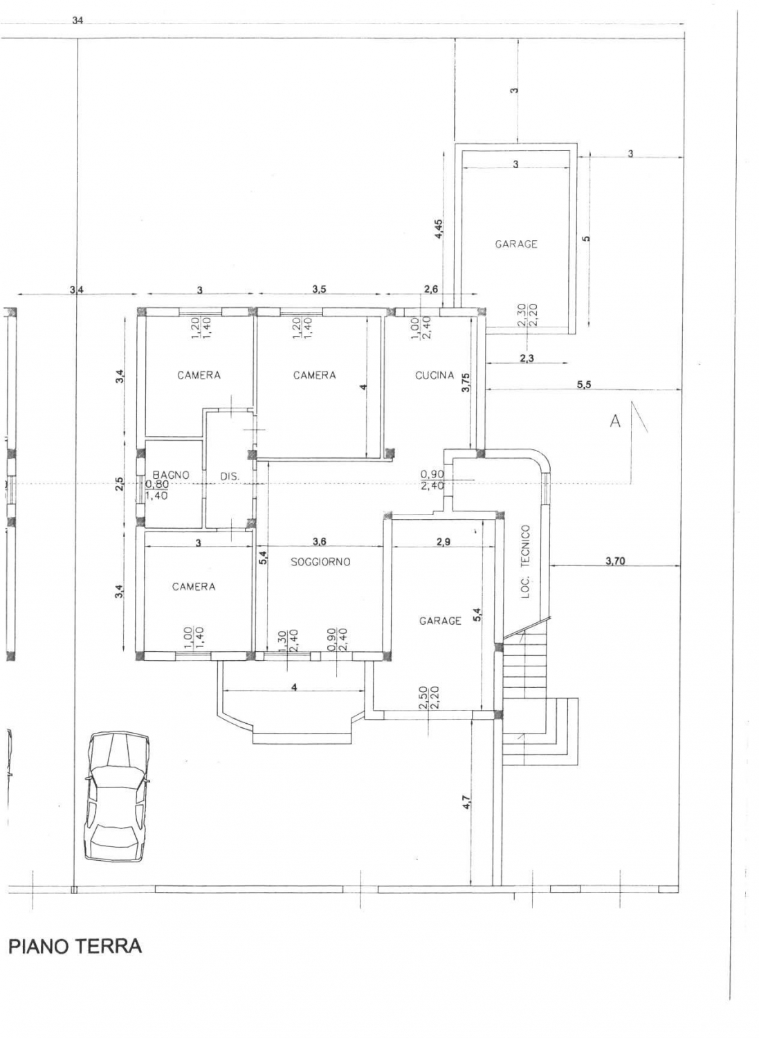
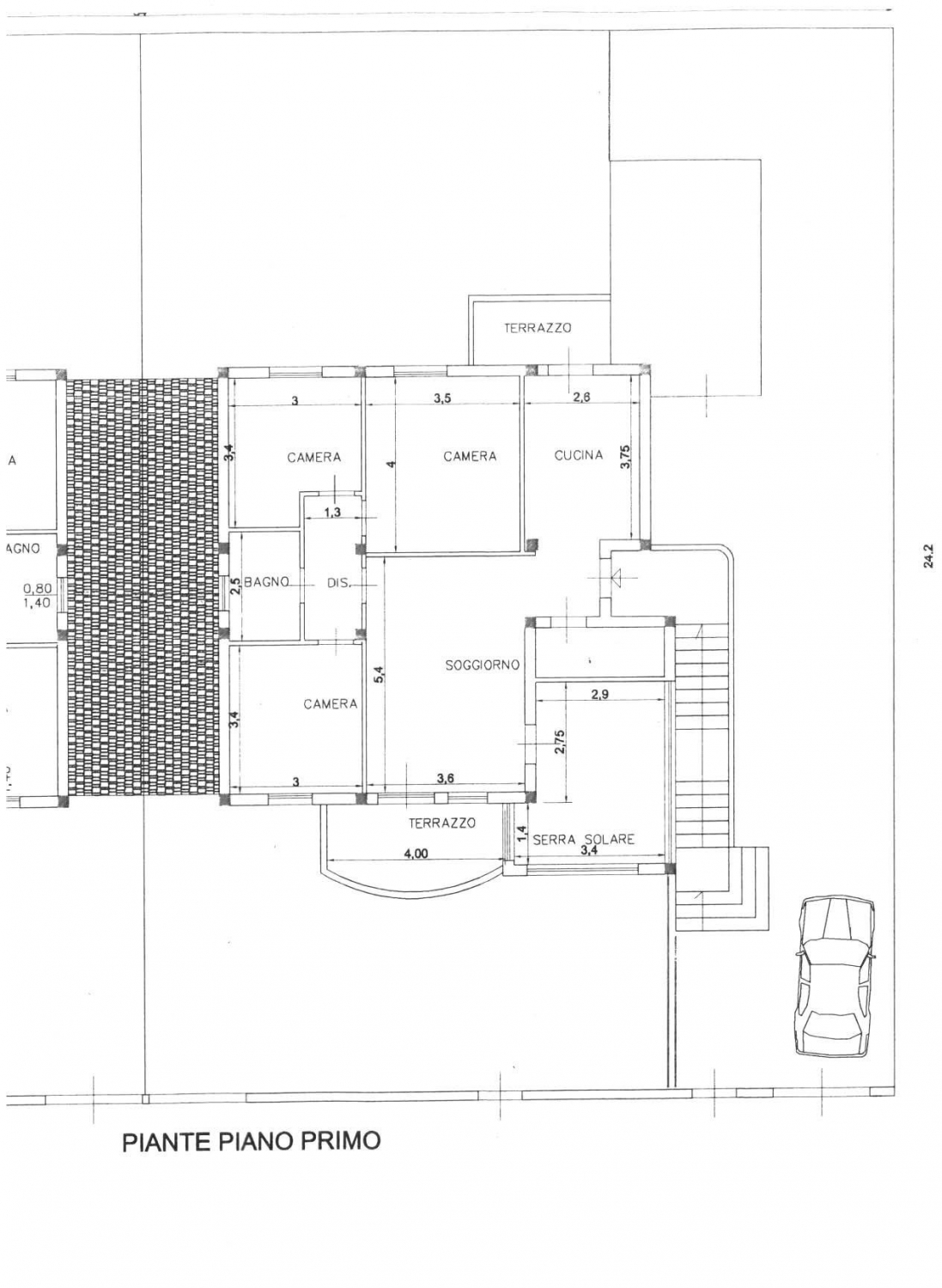
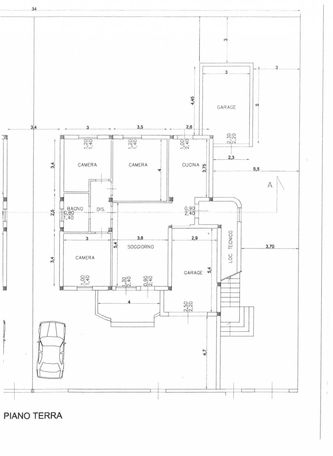
Rif: papa - cecina periferia sud in villa quadrifamiliare, appartamenti modello villetta con giardini indipendenti e terrazza abitabili massimo coeficente energetico,tutte le ultime novità in base alle normative di costruzione, appartamenti indipendenti piano terra o piano primo, composti da cucina abitabile ,tre camere ,doppi servizi,serre solari ,garage-pagamento in avanzamento lavori-nessuna spesa condominiale-possibiltà di permuta con il vostro appartamento usato-disponibile un piano terra di mq 86 composto da ampio portico d'ingresso, soggiorno, cucina abitabile, una camere matrimoniale e due camerine, bagno più un locale tecnico nel quale è possibile realizzare un secondo bagno, giardino di 160 mq e garage.




Caratteristiche immobile:
Codice inserzione: 1737337889
Rif. Annuncio: 1302391/606/papa
Provincia: Livorno
Comune: Cecina
Superficie (Mq) : 120 Mq.
Tipo immobile: Case e ville a schiera
Stato immobile: nuovo
Piano: Piano terra
Camere: 3
Garage: Doppio
Posti auto scoperti: 1 posto auto
Tipologia giardino : Privato
Bagni: 2

Costi:
Prezzo € 345.000


Efficienza energetica: