home page > Annunci immobiliari in Italia > Toscana > Livorno > Cecina > Negozi uffici capannoni in vendita > Scheda immobile

Negozi uffici capannoni in vendita a Cecina

COMPILA IL MODULO SOTTOSTANTE PER RICEVERE MAGGIORI INFORMAZIONI







Invia la richiesta ad altre agenzie
Accetto il trattamento dei miei dati



Toscanacasa

Piazza carducci 24-25
57023 Cecina (LI)

3457858899    0586630591

Cecina
Prezzo: € 3.000
G
1
600
Ultimo piano



Descrizione:
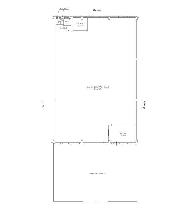
Capannone industriale d/7 con corte esclusiva cecinasoluzione produttiva pronta all'uso, ideale per imprese e logisticain vendita a cecina, capannone industriale categoria catastale d/7 di circa 600 mq, sviluppato interamente al piano terra e dotato di ingresso indipendente. Una proposta funzionale e versatile, adatta a attività produttive, artigianali, industriali o di deposito.l'immobile si presenta in buone condizioni generali, con spazi ampi e razionali che consentono un utilizzo immediato senza interventi urgenti. è presente servizio igienico interno.completa la proprietà una corte esclusiva di circa 200 mq, perfetta per carico/scarico, manovra mezzi, parcheggio o area operativa esterna.superficie coperta: circa 600 mqcategoria catastale d/7piano terra con accesso indipendentebuono stato manutentivoservizio igienicocorte privata di circa 200 mqottima fruibilità e flessibilità d'usoposizione comoda e facilmente accessibile, ideale per attività che necessitano di spazi operativi efficienti. contattaci per ricevere ulteriori informazioni o fissare una visita.alessandro agenzia toscana casa piazza carducci 24 cecina classe energetica: g




Caratteristiche immobile:
Codice inserzione: 1770610309
Rif. Annuncio: A990
Provincia: Livorno
Comune: Cecina
Superficie (Mq) : 600 Mq.
Tipo immobile: Negozi uffici capannoni
Piano: Ultimo piano
Bagni: 1

Costi:
Prezzo € 3.000


Efficienza energetica:
Classe energetica: G