05831797234 Riferimenti: Massimiliano Settembrini
Descrizione:
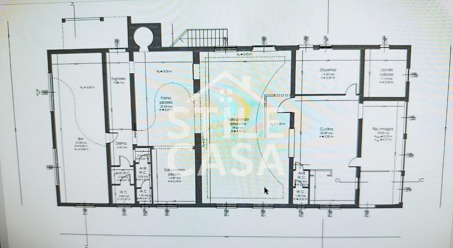
Rif: v002140 - in vendita fondo commerciale con ampi spazi interni ed esterni altopascio (lu)? capoluogo altopascio ? superficie totale: 430 mq? tipologia: locale commerciale/fondo? ingresso indipendente disposto su un unico livello piano terra libero su quattro latistai cercando un fondo commerciale con un ottima posizioneampi spazi interni ed esterniproponiamo in vendita fondo commerciale , negozio posto al piano terra di un edificio di sole due unità con ingressi completamenet indipendneti con ampia metratuta interna , circa 430 mq ed esterna circa 4000 mq su strada di forte passaggio vicino all'autostrada e a a pochi passi dal centro e da tutti i servizi principali? caratteristiche dell'immobile:? piano terra di circa 430 mq dispsoto su un unico livello senza barriere architettoniche diviso in vani in muratura cartongesso e paraetine.composto da ingresso, disimpegno, 10 avni, antibagno e abgni ( tre) per il pubblico e dipendenti.attualmene l'immobile è predisposto per un attività di ristorazione nel quale si trovano canna fumaria forno a legna cucina celle frigorifere spogliatoi magazzini e sale.ma l'ampia metratura e la disposizione può permetere con un restailing di adibire i locali a qualsiasi attività commerciale e volta al pubblico come eventi, scuole, studi, spazi espositivi, ambienti per feste.quattro ingressi esclusivi circa 400 mq di piazzale esterno su due lati privato,ad uso parcheggio o ulteriore spazio utilizzabile per l'attività svolta.le ampie metrature senza ostacoli sia interne che esterne sono il punto di forza di questo locale commerciale oltre allla fantastica posizione su strada di forte passaggio vicino a tutte le principai strade di comunicazioneadatto a molteplici destinazioni d'uso: ristorazione, bar, show-room, scuola privata, studi professionali, centro estetico o benessere, ecc.? altre informazioni:classe energetica: in attesa di certificazioneimmobile da rimodernare ma con grande potenzialeampio piazzale privato ed esclusivo per parcheggio o spazi esternil indirizzo è casuale? contattaci per ulteriori informazioni o per prenotare una visita!? rif. V002140
Codice inserzione: | 1758761506 |
Rif. Annuncio: | 1347244/1125/v002140 |
Provincia: | Lucca |
Comune: | Altopascio |
Superficie (Mq) : | 430 Mq. |
Tipo immobile: | Negozi uffici capannoni |
Stato immobile: | usato |
Piano: | Piano terra |
Prezzo | € 200.000 |