home page > Annunci immobiliari in Italia > Toscana > Lucca > Capannori > appartamenti in vendita > Scheda immobile

Appartamento in vendita a Capannori

COMPILA IL MODULO SOTTOSTANTE PER RICEVERE MAGGIORI INFORMAZIONI







Invia la richiesta ad altre agenzie
Accetto il trattamento dei miei dati



Sist3ma.it

Via delle ville, 493
55012 Capannori (LU)

0583920443

Capannori
Prezzo: € 320.000
D
3
120



Descrizione:
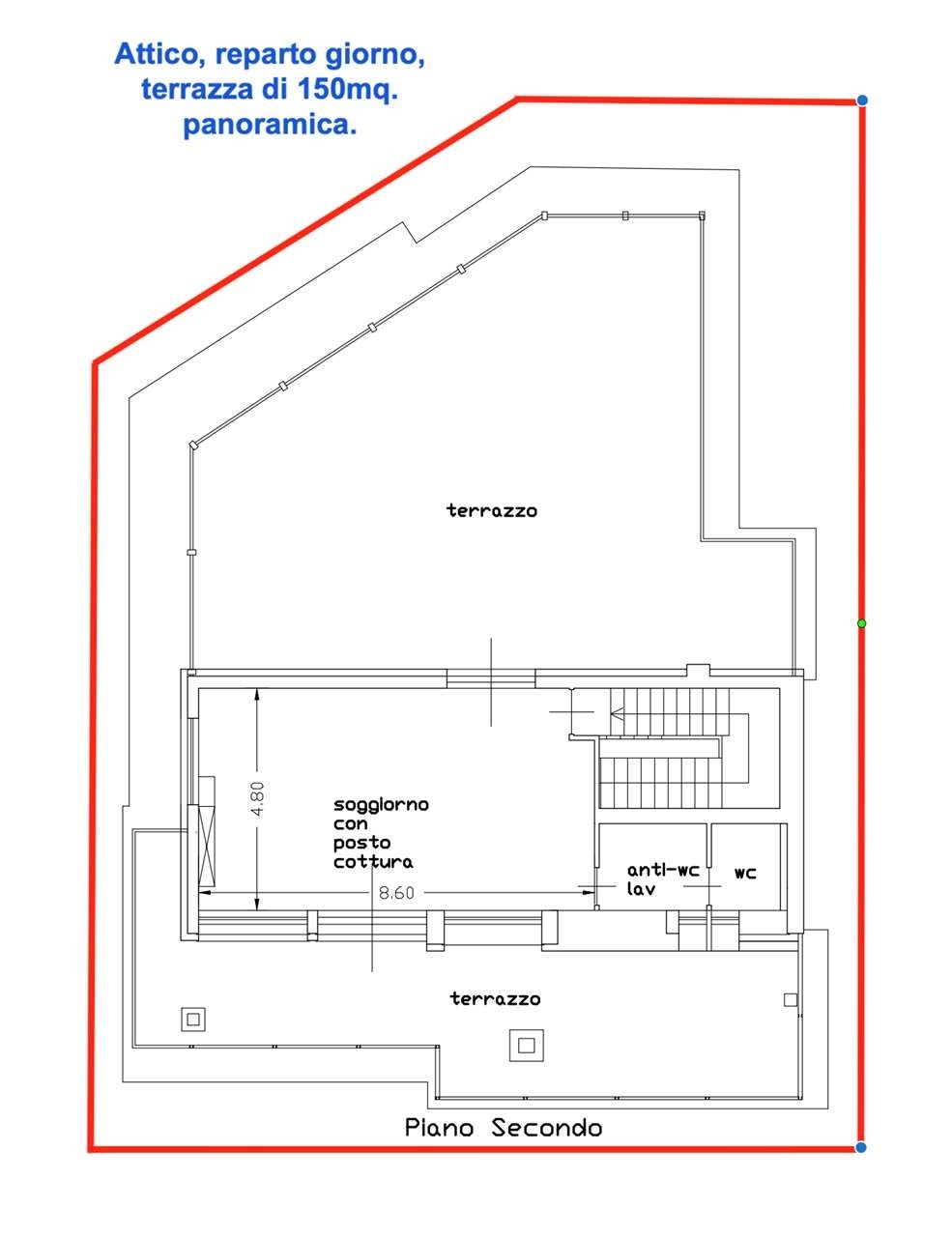
Esclusivo e introvabile ... attico completamente ristrutturato con ampia terrazza di 150mq. Che si affaccia sulle colline. segromigno in monte, la residenza sita al piano 2° si compone da ingresso soggiorno / zona cucina, antibagno e bagno, due grandi terrazze. reparto notte, disimpegno tre camere, ripostiglio e bagno. due posti auto e una cantina. in fase di ristrutturazione totale consegna dicembre 2026 .possibilità di poter scegliere le rifiniture, pavimentazioni, porte , bagni ecc.riscaldamento a pavimento con pompa di calore, infissi a taglio termico, previsione ape 'c/d'. classe energetica: d




Caratteristiche immobile:
Codice inserzione: 1759965047
Rif. Annuncio: Attico segro 320
Provincia: Lucca
Comune: Capannori
Superficie (Mq) : 120 Mq.
Tipo immobile: Appartamento
Camere: 3

Costi:
Prezzo € 320.000


Efficienza energetica:
Classe energetica: D