home page > Annunci immobiliari in Italia > Toscana > Lucca > Capannori > Attività commerciali in vendita > Scheda immobile

Attività commerciali in vendita a Capannori

COMPILA IL MODULO SOTTOSTANTE PER RICEVERE MAGGIORI INFORMAZIONI







Invia la richiesta ad altre agenzie
Accetto il trattamento dei miei dati



Casainrealestate

Via pesciatina, 42
55012 Capannori (LU)

0583321145    Riferimenti: Casainrealestate -

Capannori
Prezzo: € 190.000
290
Su più livelli



Descrizione:
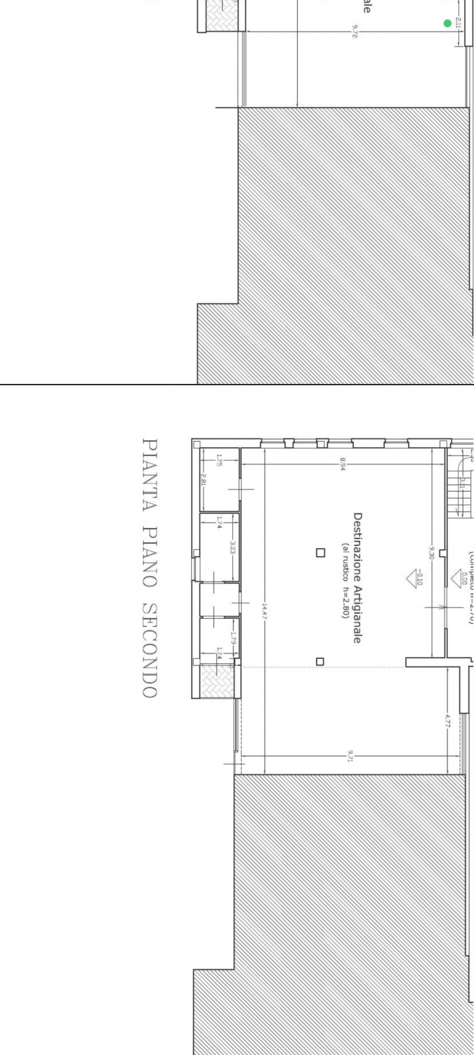
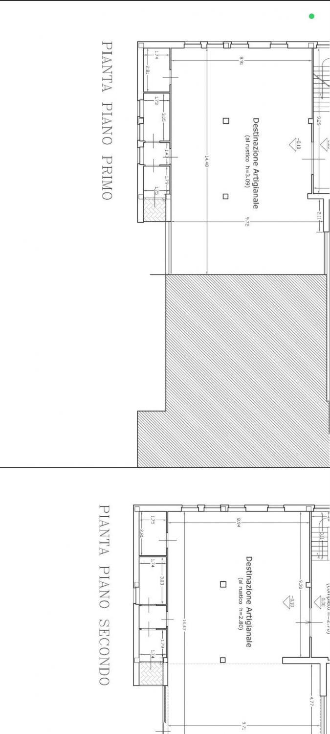
Rif: cf44 - guamo, ufficio di circa 300 mq posto su 2 livelli, piano primo e secondo/ultimo ( 150 mq a piano) attualmente al grezzo divisi ciascuno in unico vano con predisposizione per ricavare 1/2 bagni, corredato da 4 posti auto esclusivi, con possibilita' di realizzare ascensore. Situato in una posizione strategica, questo ufficio rappresenta un'opportunità unica per chi cerca uno spazio funzionale e versatile sia per uso lavorativo sia per investimento, esente al momento da classe energetica non avendo ancora impianto di luce e acqua, si precisa che l'indirizzo pubblicato nell'annuncio non corrisponde all'esatta geolocalizzazione dell'immobile, preghiamo quindi di contattarci telefonicamente o via email per avere informazioni più dettagliate. Riferimento cf44




Caratteristiche immobile:
Codice inserzione: 1769392522
Rif. Annuncio: 1386125/2118/CF44
Provincia: Lucca
Comune: Capannori
Superficie (Mq) : 290 Mq.
Tipo immobile: Attività commerciali
Stato immobile: usato da riattare
Piano: Su più livelli

Costi:
Prezzo € 190.000


Efficienza energetica: