home page > Annunci immobiliari in Italia > Toscana > Lucca > Capannori > Case e ville indipendenti in vendita > Scheda immobile

Case e ville indipendenti in vendita a Capannori

COMPILA IL MODULO SOTTOSTANTE PER RICEVERE MAGGIORI INFORMAZIONI







Invia la richiesta ad altre agenzie
Accetto il trattamento dei miei dati



Immobiliare why not?

Viale c. Castracani, 313
55100 Lucca

0583467058    Riferimenti: Valentina Cupido

Capannori
Prezzo: € 165.000
C
2
2
102
Su più livelli
1



Descrizione:
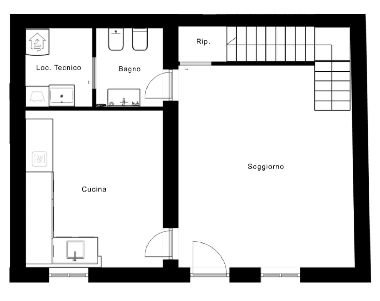
Rif: terra tetto ubicato nel comune di capannori, nella zona di lammari, verrà consegnato con la formula 'chiavi in mano' entro la fine dell'anno, è previsto capitolato di buona qualità con travi e travicelli (eccetto le pareti esterne il resto sarà tutto di nuova costruzione) l'abitazione offre un'opportunità di appartamento indipendente di dimensioni interessanti e offre il giusto mix fra stile rustico e moderno a un prezzo relativamente contenuto con una superficie di 120 mq al lordo dei muri, disposto su più livelli, la proprietà vanta 4 locali(ingresso/soggiorno, cucina, 2 camere matrimoniali locale tecnico e 2 bagni ) ben distribuiti, oltre a posto auto esterno, garantendo spazio e privacy. L'ingresso indipendente è il benvenuto perfetto per la tua nuova vita. Il prezzo di 165.000 euro rende questo immobile un investimento intelligente e conveniente. Futura classe energetica prevista : c] nostra opinione immobile interessante con sviluppo su 2 piani personalizzabile con possibilità di recupero fiscale(pari ad € 48.000,00) , si consiglia di fissare un appuntamento in agenzia per avere maggiori ragguagli e programmare una visita




Caratteristiche immobile:
Codice inserzione: 1768528444
Rif. Annuncio: 1364092/1272/02775
Provincia: Lucca
Comune: Capannori
Zona: Lammari  
Superficie (Mq) : 102 Mq.
Tipo immobile: Case e ville indipendenti
Stato immobile: nuovo
Anno costruzione/ristrutturazione: 2026
Piano: Su più livelli
Camere: 2
Posti auto scoperti: 1 posto auto
Bagni: 2

Costi:
Prezzo € 165.000


Efficienza energetica:
Classe energetica: C
Indice di prestazione energetica (EPgl): 40 kWh/mq annui