home page > Annunci immobiliari in Italia > Toscana > Lucca > Montecarlo > Terreni in vendita > Scheda immobile

Terreni in vendita a Montecarlo

COMPILA IL MODULO SOTTOSTANTE PER RICEVERE MAGGIORI INFORMAZIONI







Invia la richiesta ad altre agenzie
Accetto il trattamento dei miei dati



Dimensione casa immobiliare

Via romana, 2360
55100 Lucca

0583469841    0583495113    Riferimenti: CASINI/NICOLETTA

Montecarlo
Prezzo: € 250.000
1000



Descrizione:
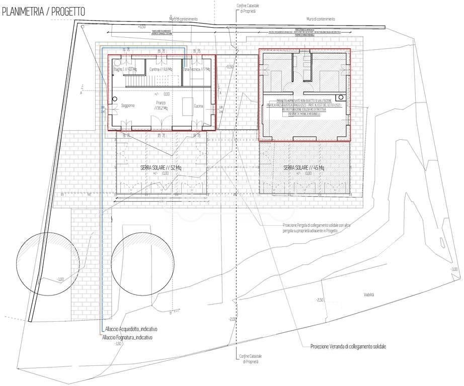
Rif.ag. 5812-te - montecarlo - a soli 20 minuti da porta elisa, in splendida posizione collinare e panoramica, proponiamo in vendita due lotti di terreno su cui insistono fabbricati esistenti oggetto di un progetto già approvato (validità fino a novembre 2029) che prevede la demolizione e la ricostruzione dei volumi per la realizzazione di due ville unifamiliari. Caratteristiche del progetto: le due unità abitative saranno indipendenti sia dal punto di vista urbanistico che catastale, collegate elegantemente da un porticato architettonico. Unità a: sviluppata su due livell per totali 140mq, oltre serra solare di 52mq. Unità b: sviluppata al piano terra per ca. 70mq totali, oltre 45mq di serra solare, con possibilità di realizzare un garage sottostante. Entrambe le ville saranno corredate da giardino privato. Dettagli economici e oneri: la soluzione viene venduta con i permessi pronti all'uso, permettendo un inizio lavori immediato. Gli oneri di costruzione sono già stati stimati: oneri unità su due livelli: circa ? 20.000,00 oneri unità piccola: circa ? 7.000,00 punto di forza: una soluzione ideale per chi cerca l'indipendenza e il fascino della campagna lucchese, associato alla comodità di un progetto moderno con un panorama mozzafiato. L'indirizzo pubblicato potrebbe non corrispondere all'esatta ubicazione dell'immobile: contattateci per avere informazioni più dettagliate. - sc9624321




Caratteristiche immobile:
Codice inserzione: 1774405228
Rif. Annuncio: 1403099/1178/5812-TE
Provincia: Lucca
Comune: Montecarlo
Superficie (Mq) : 1000 Mq.
Tipo immobile: Terreni

Costi:
Prezzo € 250.000


Efficienza energetica: