home page > Annunci immobiliari in Italia > Toscana > Lucca > Viareggio > appartamenti in vendita > Scheda immobile

Appartamento in vendita a Viareggio

COMPILA IL MODULO SOTTOSTANTE PER RICEVERE MAGGIORI INFORMAZIONI







Invia la richiesta ad altre agenzie
Accetto il trattamento dei miei dati



Laltracasa

Via antonio fratti, 362
55049 Viareggio (LU)

0584.581166

Viareggio
Prezzo: € 250.000
3
2
100
99



Descrizione:
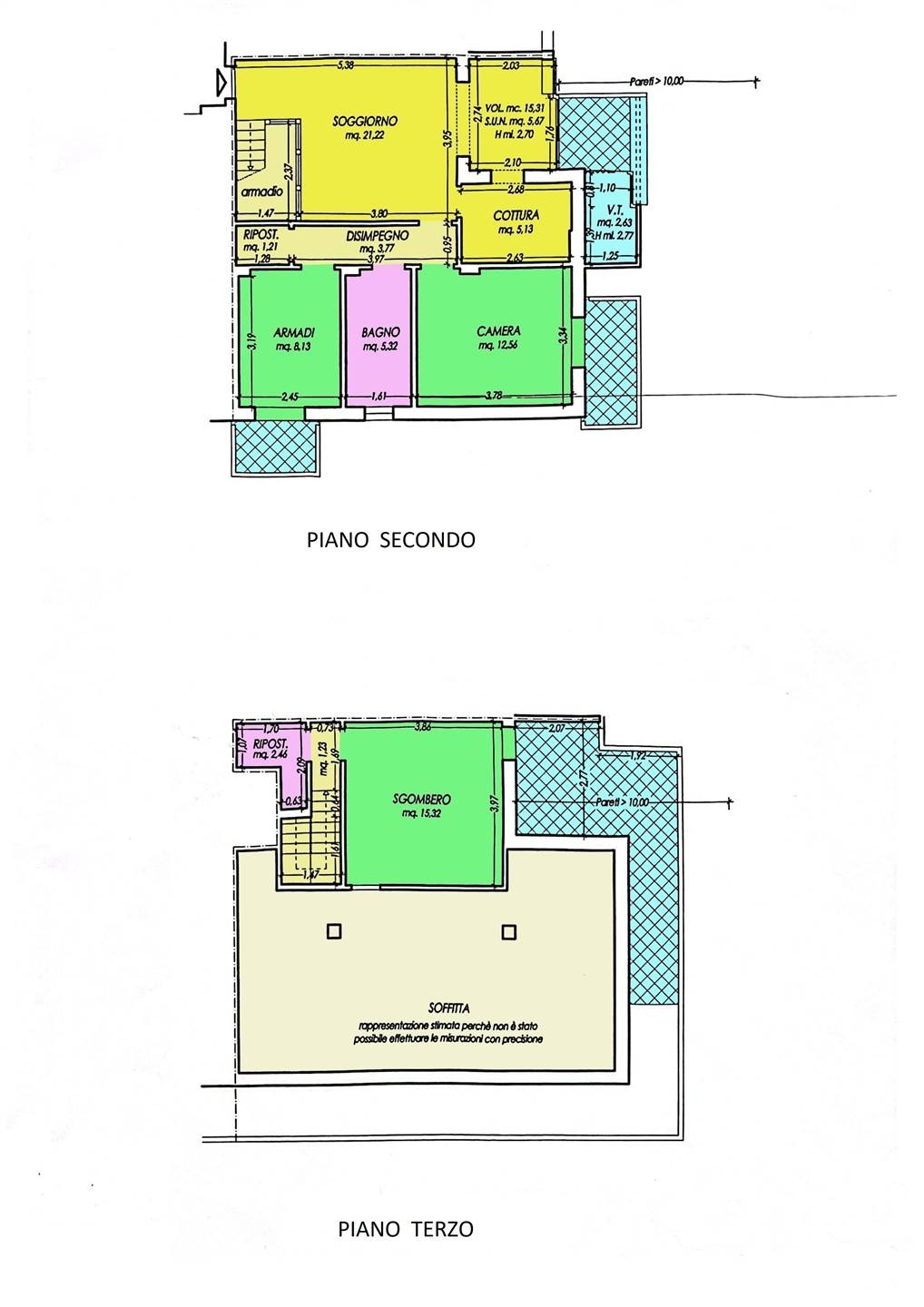
Viareggio - terminetto: in zona tranquilla, appartamento al secondo ed ultimo piano oltre a mansarda, con ascensore, cantina interrata e posto auto. Piano secondo: ingresso, soggiorno, tinello, cucinotto, terrazza, disimpegno notte, camera matrimoniale con balcone, cameretta con balcone, ripostiglio e bagno con doccia; piano terzo: mansardato, diviso in camera matrimoniale, bagno, ripostiglio sottotetto ed ampia terrazza solarium. Ottime le condizioni e le rifiniture, porta blindata, pavimenti in parquet ed aria condizionata. Classe energetica: f




Caratteristiche immobile:
Codice inserzione: 1756696270
Rif. Annuncio: VG1057
Provincia: Lucca
Comune: Viareggio
Superficie (Mq) : 100 Mq.
Tipo immobile: Appartamento
Stato immobile: usato
Piano: Ultimo piano
Camere: 3
Bagni: 2
Terrazze: 1

Costi:
Prezzo € 250.000


Efficienza energetica:
Riscaldamento: autonomo