home page > Annunci immobiliari in Italia > Toscana > Lucca > Viareggio > appartamenti in vendita > Scheda immobile

Appartamento in vendita a Viareggio

COMPILA IL MODULO SOTTOSTANTE PER RICEVERE MAGGIORI INFORMAZIONI







Invia la richiesta ad altre agenzie
Accetto il trattamento dei miei dati



Megaron immobiliare lucca

Via del brennero n 454
55100 Lucca

05831892859    3311231722

Viareggio
Prezzo: € 240.000
G
3
1
86
1



Descrizione:
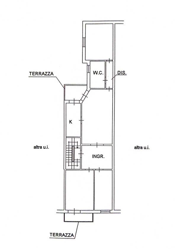
Viareggio - vendesi appartamento al primo piano in pieno centro.rif.2022v011 - viareggio, vendesi appartamento di 86mq posto al primo piano senza ascensore in palazzina di sole due unità abitative composto da: ingresso su disimpegno, cucinotto, soggiorno, due camere matrimoniali, bagno finestrato con vasca, camera singola.grazie alla posizione in cui si trova l'immobile può godere della vicinanza al centro, di tutte le prime necessità e della vicinanza al mare.e' possibile acquistare anche l'appartamento al secondo piano.per informazioni contattare l'agenzia.




Caratteristiche immobile:
Codice inserzione: 1774330701
Rif. Annuncio: 2022V011
Provincia: Lucca
Comune: Viareggio
Superficie (Mq) : 86 Mq.
Tipo immobile: Appartamento
Stato immobile: usato da riattare
Anno costruzione/ristrutturazione: 1889
Piano: 1
Camere: 3
Stato al rogito: Libero
Bagni: 1

Costi:
Prezzo € 240.000


Efficienza energetica:
Classe energetica: G
Riscaldamento: autonomo