home page > Annunci immobiliari in Italia > Toscana > Massa-Carrara > Massa > appartamenti in vendita > Scheda immobile

Appartamento in vendita a Massa

COMPILA IL MODULO SOTTOSTANTE PER RICEVERE MAGGIORI INFORMAZIONI







Invia la richiesta ad altre agenzie
Accetto il trattamento dei miei dati



Innocenti case immobiliare

Piazza aranci, 39
54100 Massa (MS)

3277945602    Riferimenti: Chiara Innocenti

Massa
Prezzo: € 349.000
E
2
2
106
1
2



Descrizione:
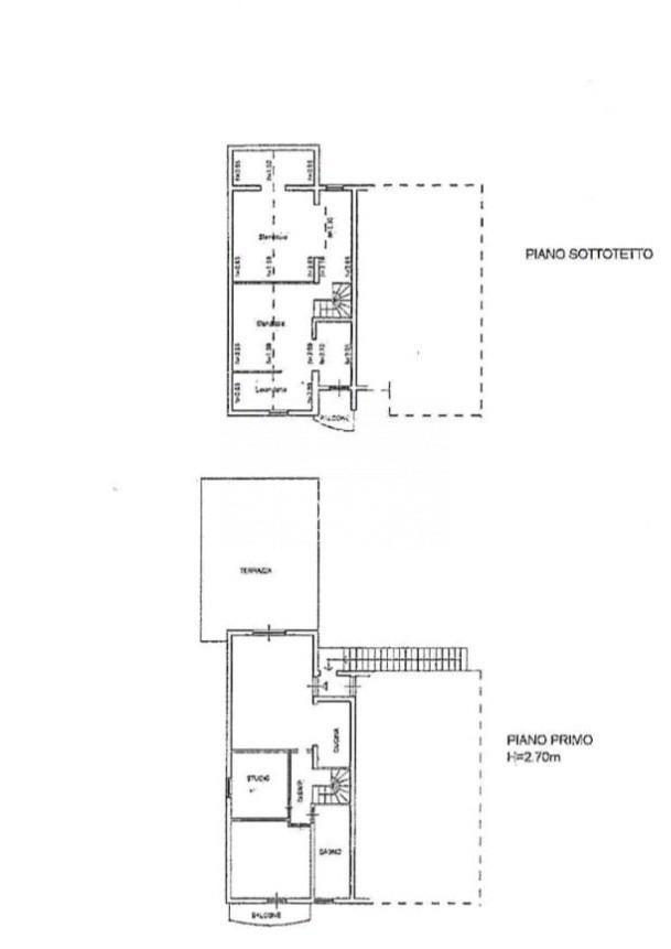
Rif: chi-048 - a poche centinaia di metri dal centro, in elegante contesto quadrifamiliare , splendido appartamento di 106 mq , completamente ristrutturato e personalizzato con gusto e pregio, (costruzione del 2007) situato al primo piano e internamente disposto su due livelli. l' immobile è una soluzione moderna, raffinata e ideale per clienti che cercano una casa pronta da vivere con stile e confort.l'immobile si distingue per la cura dei dettagli e per ambienti accoglienti che trasmettono pace e quiete.l'ingresso introduce in una luminosissima zona giorno con ampia sala e cucina separata, disimpegno con camera matrimoniale balconata con vista castello, cameretta/studio e bagno con vasca, molto bello , con eleganti mosaici.al piano superiore , ampia zona notte mansardata ( altezza al colmo circa 3 metri) suddivisa in zona notte, studio e bagno con doccia ed illuminata oltre che da finestre da grandi lucernai velox.ma la chicca dell' immobile e la splendida terrazza di 35 mq , paradiso per cene con amici o semplici colazioni, dotata di pergotenda .completano la proposta un posto auto di proprietà, piuttosto lungo ,che potrebbe anche ospitare due utilitarie in contemporanea.viene venduta parzialmente arredata, climatizzata e allarmata perimetralmente.




Caratteristiche immobile:
Codice inserzione: 1773626239
Rif. Annuncio: 1400006/2127/CHI-048
Provincia: Massa-Carrara
Comune: Massa
Superficie (Mq) : 106 Mq.
Tipo immobile: Appartamento
Stato immobile: recente
Anno costruzione/ristrutturazione: 2007
Piano: 1
Camere: 2
Arredato:
Posti auto scoperti: 2 posti auto
Bagni: 2

Costi:
Prezzo € 349.000


Efficienza energetica:
Classe energetica: E
Indice di prestazione energetica (EPgl): 99.44 kWh/mq annui