home page > Annunci immobiliari in Italia > Toscana > Massa-Carrara > Massa > Case e ville a schiera in vendita > Scheda immobile

Case e ville a schiera in vendita a Massa

COMPILA IL MODULO SOTTOSTANTE PER RICEVERE MAGGIORI INFORMAZIONI







Invia la richiesta ad altre agenzie
Accetto il trattamento dei miei dati



Innocenti case immobiliare

Piazza aranci, 39
54100 Massa (MS)

3277945602    Riferimenti: Chiara Innocenti

Massa
Prezzo: € 270.000
2
2
70
Piano terra
2



Descrizione:
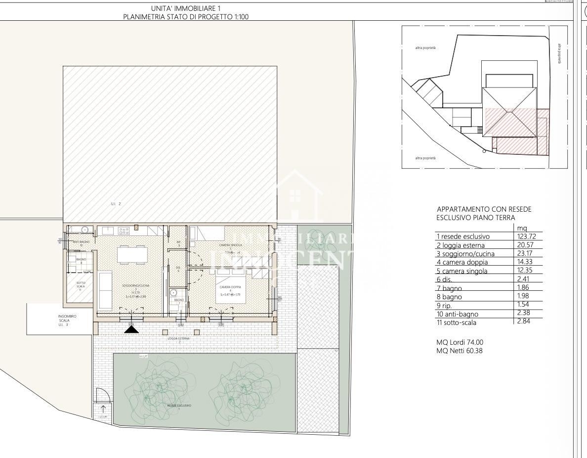
Rif: lisa - massa, località quercioli, tra il mare e la città, in un'oasi di pace e tranquillità, proponiamo in esclusiva appartamento inserito in contesto trifamiliare con ingresso completamente indipendente, su progetto già approvato e di prossima realizzazione.l'immobile sarà dotato di accesso privato, due posti auto all'interno della proprietà e giardino esclusivo con loggia esterna, ideale per vivere gli spazi all'aperto in totale privacy. Nessuna spesa condominiale e assenza di servitù di passaggio, con ingressi completamente autonomi.la soluzione si comporrà di ingresso su soggiorno con angolo cottura, antibagno e bagno, ripostiglio, disimpegno zona notte, secondo bagno, una camera doppia e una camera singola. Tutti gli ambienti, ad eccezione dei bagni, avranno accesso diretto agli spazi esterni.l'esposizione su tre lati, nordovestsud, garantirà un'ottima luminosità durante tutta la giornata.l'immobile verrà realizzato completamente nuovo, con finiture di ottimo livello e materiali di qualità. Classe energetica in fase di definizione, prevista in fascia elevata. Il progetto è già definito, con possibilità per l'acquirente di apportare eventuali personalizzazioni e migliorie interne, compatibilmente con lo stato di avanzamento lavori e nel rispetto del capitolato.soluzione ideale per chi cerca indipendenza, spazi esterni esclusivi e una casa di nuova realizzazione in contesto tranquillo, a pochi minuti dal mare e dai principali servizi.




Caratteristiche immobile:
Codice inserzione: 1775609887
Rif. Annuncio: 1402955/2127/LISA
Provincia: Massa-Carrara
Comune: Massa
Zona: Quercioli  
Superficie (Mq) : 70 Mq.
Tipo immobile: Case e ville a schiera
Stato immobile: nuovo
Anno costruzione/ristrutturazione: 2026
Piano: Piano terra
Camere: 2
Posti auto scoperti: 2 posti auto
Tipologia giardino : Privato
Bagni: 2

Costi:
Prezzo € 270.000


Efficienza energetica: