home page > Annunci immobiliari in Italia > Toscana > Massa-Carrara > Massa > Case e ville indipendenti in vendita > Scheda immobile

Case e ville indipendenti in vendita a Massa

COMPILA IL MODULO SOTTOSTANTE PER RICEVERE MAGGIORI INFORMAZIONI







Invia la richiesta ad altre agenzie
Accetto il trattamento dei miei dati



Lorena

Via fiorillo n. 9
54033 Carrara (MS)

3351363116    Riferimenti: Lorena tolaini Tolaini

Massa
Prezzo: € 150.000
G
3
2
148
Piano terra
2



Descrizione:
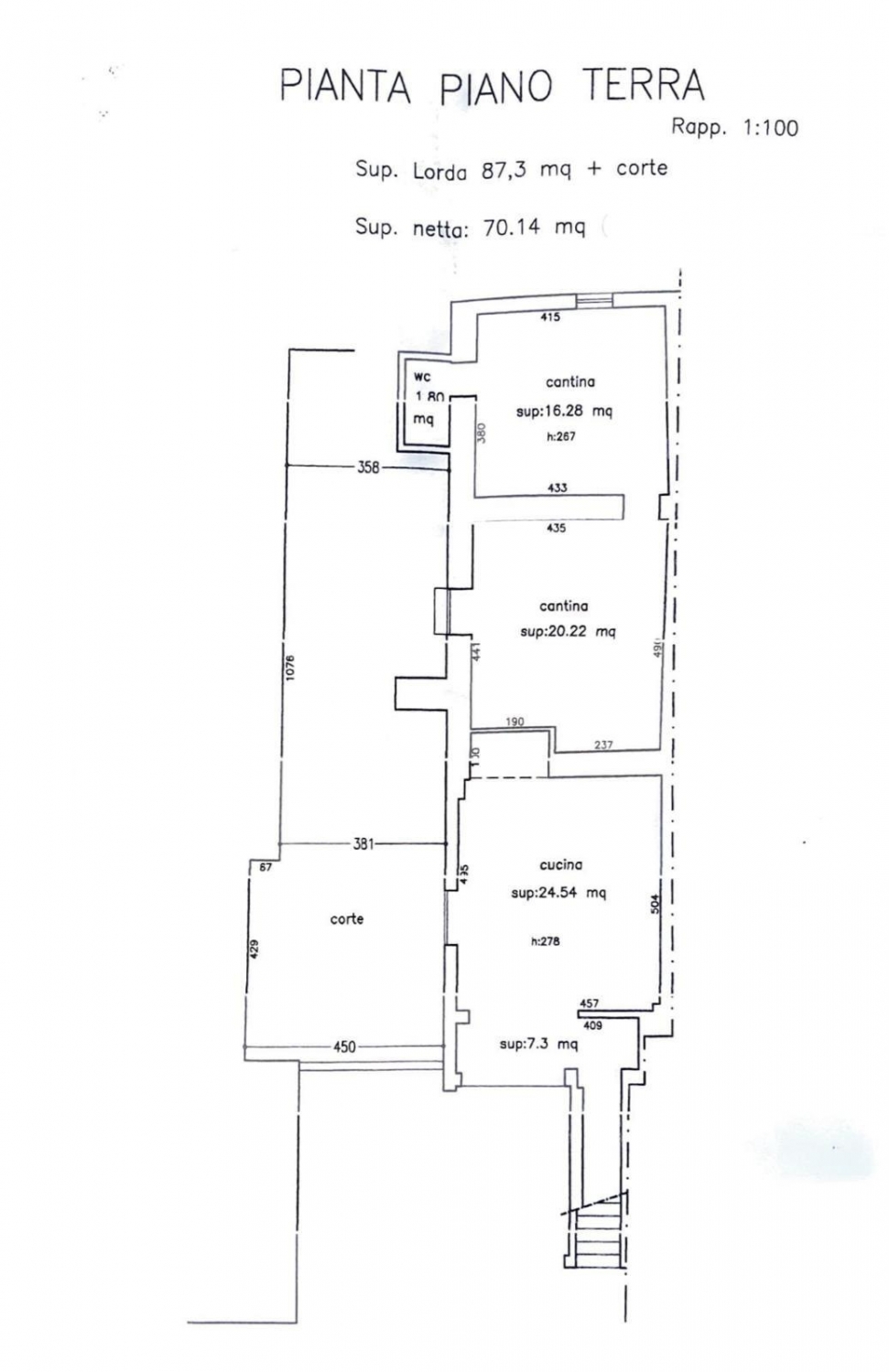
Rif: quercioli, vendesi terratetto semindipendente libero su 3 lati, completamente da ristrutturare. L'immobile ha un giardino pertinenziale privato di circa 100mq e si sviluppa su 2 livelli. Attualmente suddiviso in 3 subalterni : piano terra civile abitazione, sempre al piano terra cantina e piano primo civile abitazione. i subalterni si possono fondere per realizzare una villetta semindipendente con cucina, salone e camera matrimoniale oltre al bagno al piano terra e 3 camere matrimoniali oltre al bagno al piano primo. nel caso si volesse mantenere i subalterni divisi per realizzare 2 nuovi appartamenti è possibile realizzare 2 trilocali con cucina open space, 2 camere da letto e bagno o in alternativa cucina, sala, una camera da letto e bagno. consigliata demolizione/ricostruzione del fabbricato per realizzare un immobile (o 2 immobili) più performanti, dato che vi è la necessità di rifare tetto e solai.




Caratteristiche immobile:
Codice inserzione: 1772070687
Rif. Annuncio: 1322935/564/3403
Provincia: Massa-Carrara
Comune: Massa
Zona: Quercioli  
Superficie (Mq) : 148 Mq.
Tipo immobile: Case e ville indipendenti
Stato immobile: usato da riattare
Anno costruzione/ristrutturazione: 1930
Piano: Piano terra
Camere: 3
Posti auto scoperti: 2 posti auto
Tipologia giardino : Privato
Bagni: 2

Costi:
Prezzo € 150.000


Efficienza energetica:
Classe energetica: G
Indice di prestazione energetica (EPgl): 100 kWh/mq annui