home page > Annunci immobiliari in Italia > Toscana > Pisa > Cascina > appartamenti in vendita > Scheda immobile

Appartamento in vendita a Cascina

COMPILA IL MODULO SOTTOSTANTE PER RICEVERE MAGGIORI INFORMAZIONI







Invia la richiesta ad altre agenzie
Accetto il trattamento dei miei dati



Italiana casa - ag. Immobiliare

Corso matteotti, 42
56021 Cascina (PI)

050701156    Riferimenti: Gabriele Italiana casa

Cascina
Prezzo: € 199.000
2
1
70
Piano terra



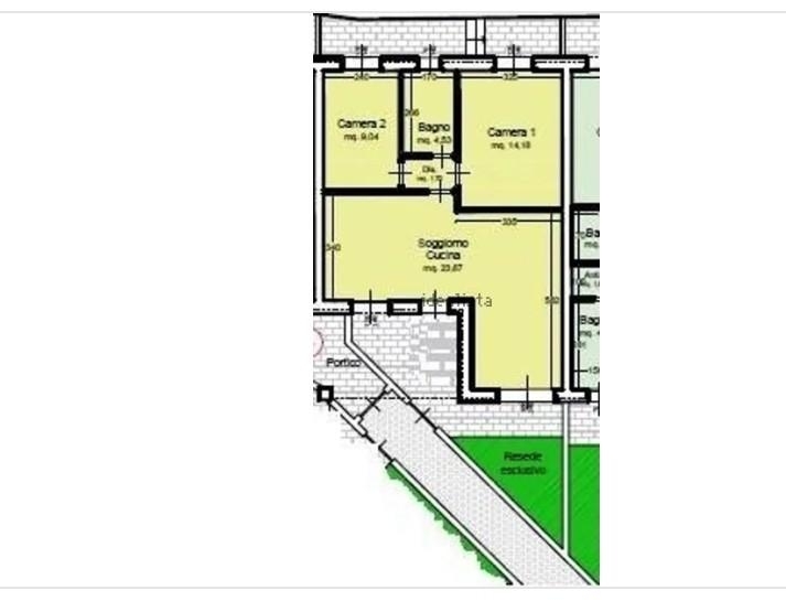
Descrizione:
Rif: y250017 - cascina vicino ai servizi, 3 vani ristrutturato a nuovo, con ingresso indipendente, pt ed ultimo (con riscaldamento a pavimento) .si compone di cucina soggiorno open space, disimpegno notte, due camere, bagno. Sia la zona giorno che quella notte affacciano su resede. Due posti auto.classe energetica 'a'.( riscaldamento al pavimento, pompa di calore, infissi a taglio termico con doppi vetri, cappotto termico, pannelli solari, fotovoltaici e della predisposizione di impianto di raffescamento e ventilazione meccanica.)




Caratteristiche immobile:
Codice inserzione: 1764899255
Rif. Annuncio: 1371019/35/Y250017
Provincia: Pisa
Comune: Cascina
Superficie (Mq) : 70 Mq.
Tipo immobile: Appartamento
Stato immobile: nuovo
Piano: Piano terra
Camere: 2
Bagni: 1

Costi:
Prezzo € 199.000


Efficienza energetica: