home page > Annunci immobiliari in Italia > Toscana > Pisa > Cascina > Case e ville indipendenti in vendita > Scheda immobile

Case e ville indipendenti in vendita a Cascina

COMPILA IL MODULO SOTTOSTANTE PER RICEVERE MAGGIORI INFORMAZIONI







Invia la richiesta ad altre agenzie
Accetto il trattamento dei miei dati



La aurora immobiliare

Via tosco romagnola, /2122 2120
56021 Cascina (PI)

0507846820    3938541465    Riferimenti: Arianna Pardini

Cascina
Prezzo: € 210.000
A1
2
3
90
Piano terra
1



Descrizione:
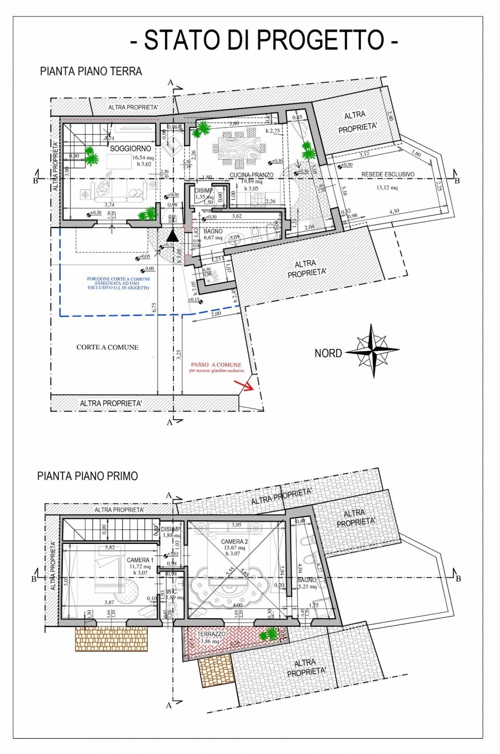
Rif: terratetto in classe ain contesto di corte vicino a tutti i servizi proponiamo terratetto finale di corte in fase di completa ristrutturazione. La soluzione si dispone su due piani con un ingresso in soggiorno, cucina abitabile separata con bagno di servizio al piano. Tramite scala interna raggiungiamo il reparto notte dove troviamo le due camere da letto matrimoniali, un bagno privato per la camera da letto ed un bagno a servizio del reparto notte. Completa la soluzione la possibilità di arrivare davanti casa con la macchina e poterla parcheggiare ed il giardino di proprietà leggermente staccato da casa. la ristrutturazione sarà totale portando l'immobile in classe a con la possibilità di personalizzare le rifiniture interne. soluzione pronta per fine luglio 2026




Caratteristiche immobile:
Codice inserzione: 1775004684
Rif. Annuncio: 1404000/543/1277
Provincia: Pisa
Comune: Cascina
Zona: Navacchio  
Superficie (Mq) : 90 Mq.
Tipo immobile: Case e ville indipendenti
Stato immobile: ristrutturato
Piano: Piano terra
Camere: 2
Posti auto scoperti: 1 posto auto
Tipologia giardino : Privato
Bagni: 3

Costi:
Prezzo € 210.000


Efficienza energetica:
Classe energetica: A1
Indice di prestazione energetica (EPgl): 0.1 kWh/mq annui