home page > Annunci immobiliari in Italia > Toscana > Pisa > Pontedera > appartamenti in vendita > Scheda immobile

Appartamento in vendita a Pontedera

COMPILA IL MODULO SOTTOSTANTE PER RICEVERE MAGGIORI INFORMAZIONI







Invia la richiesta ad altre agenzie
Accetto il trattamento dei miei dati



Salutini andrea agenzia immobiliare

Via pacinotti, 11
56025 Pontedera (PI)

0587810555    Riferimenti: Andrea Salutini

Pontedera
Prezzo: € 198.000
G
3
1
163
1



Descrizione:
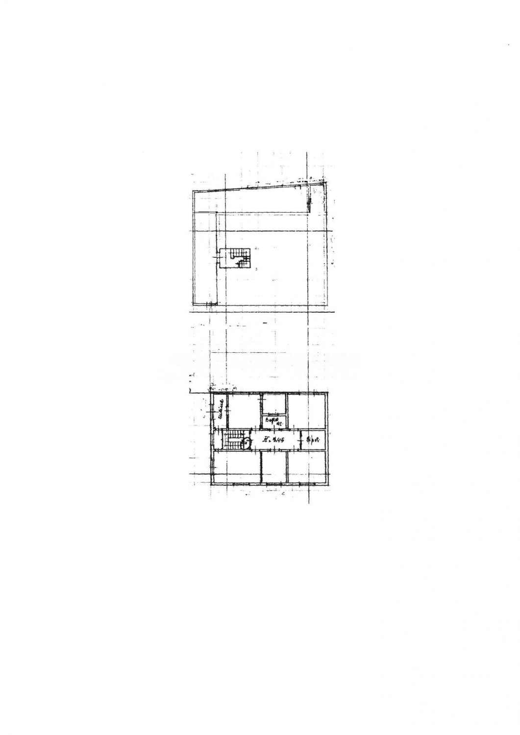
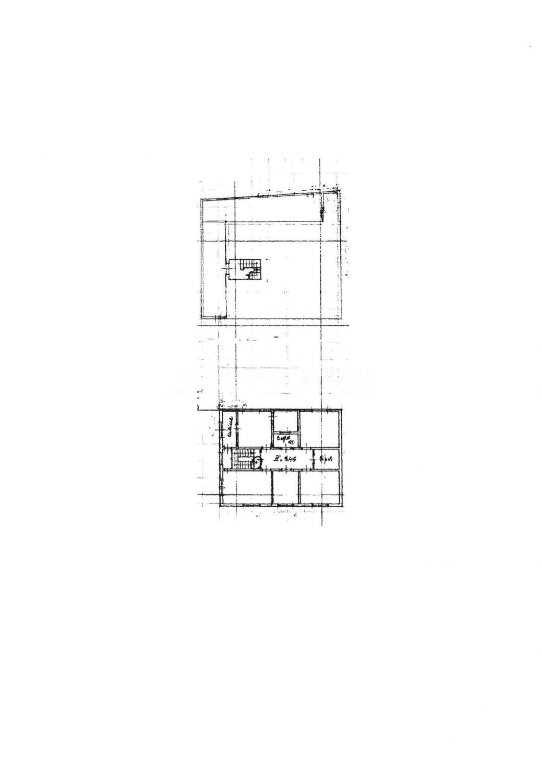
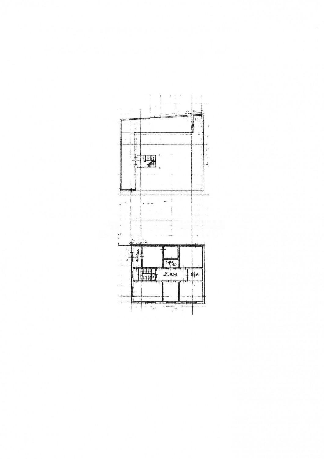
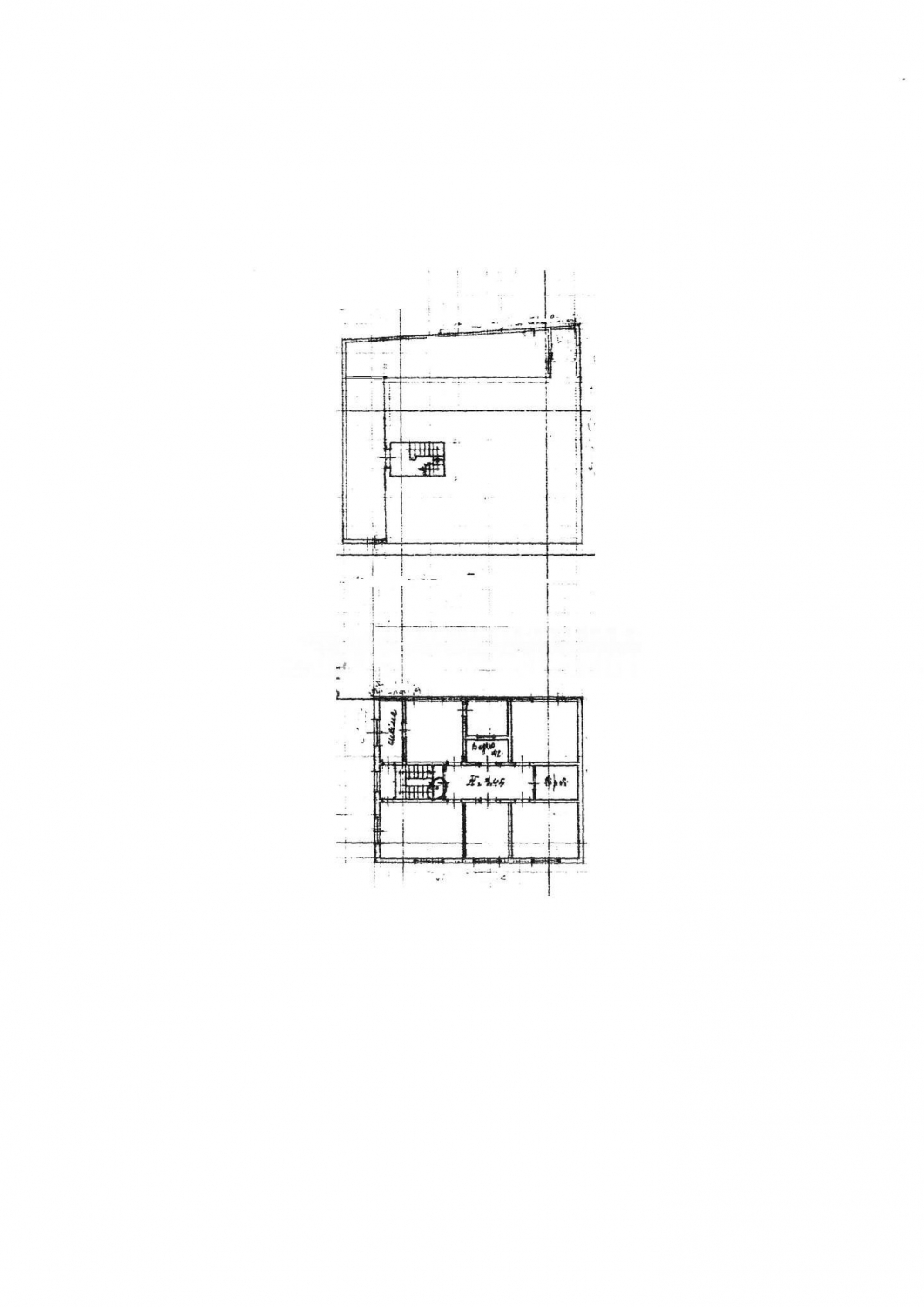
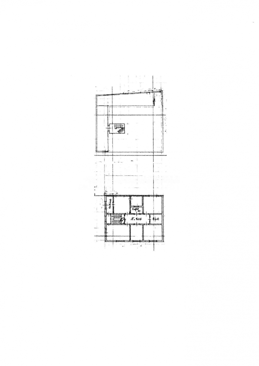
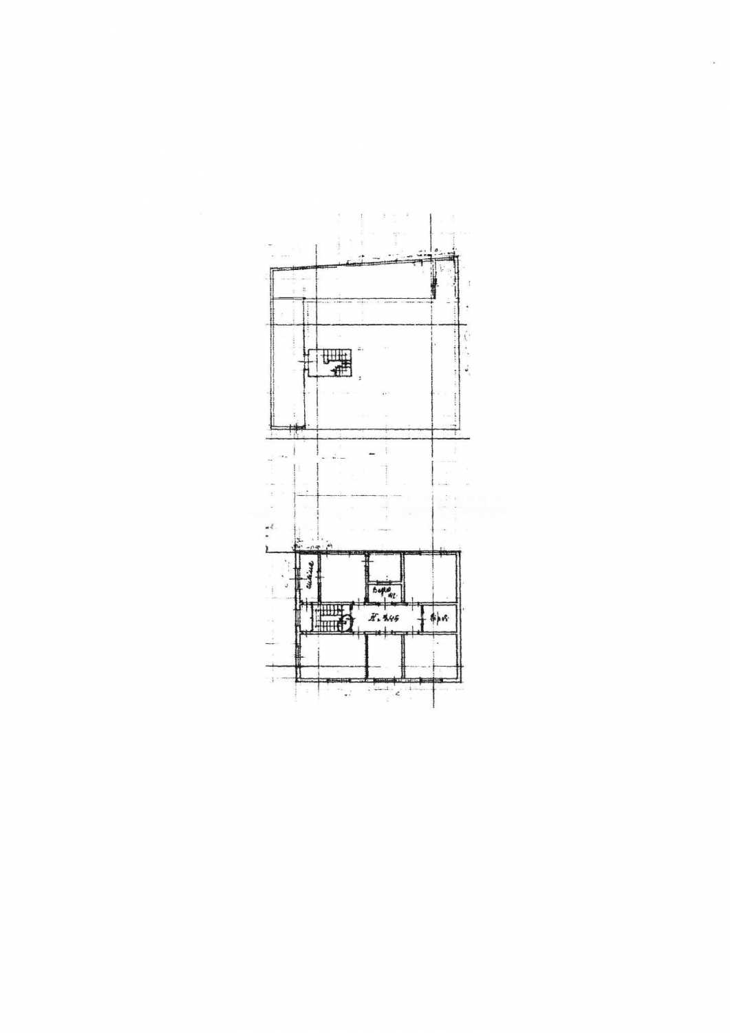
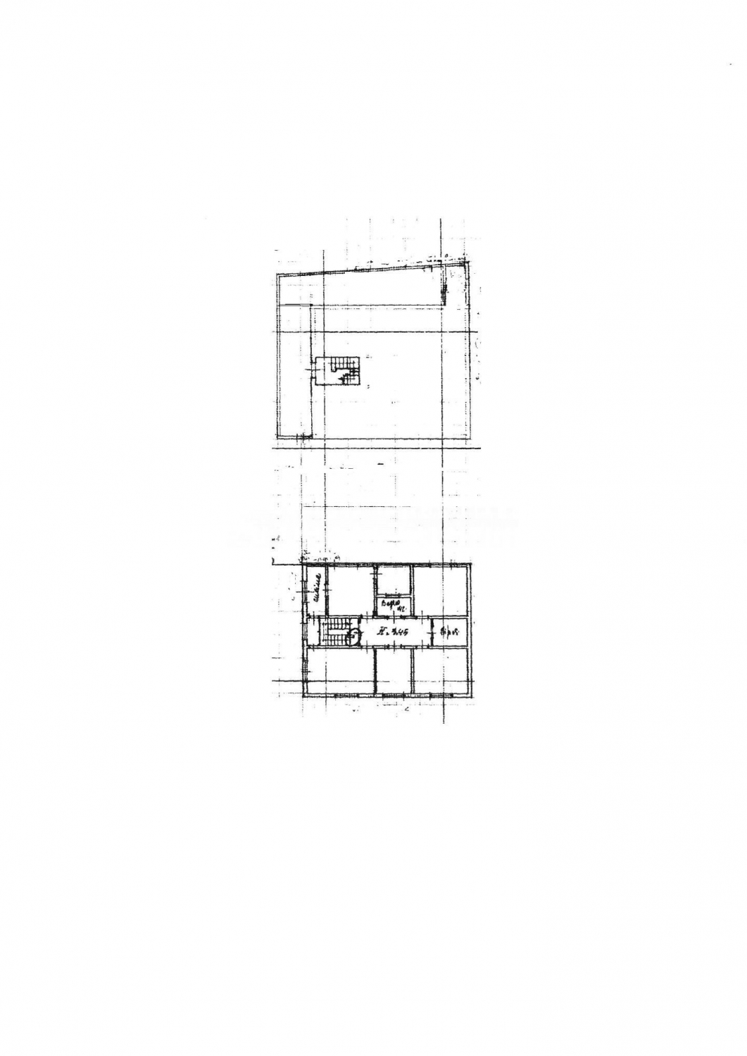
Rif: s - capoluogo - pontedera- vendesi ampio appartamento di oltre 160 mq con ingresso indipendente. L'immobile, posto nelle primissime vicinanze del centro, ha tutti i principali servizi nelle vicinanze. L'appartamento si compone in: resede di arrivo, al primo piano troviamo grande soggiorno, cucinotto con tinello, tre camere, bagno e ripostiglio oltre a soffitta. Classe energetica: g - rif. 2389-s




Caratteristiche immobile:
Codice inserzione: 1770774812
Rif. Annuncio: 1393874/1361/2389-s
Provincia: Pisa
Comune: Pontedera
Superficie (Mq) : 163 Mq.
Tipo immobile: Appartamento
Stato immobile: usato
Piano: 1
Camere: 3
Bagni: 1

Costi:
Prezzo € 198.000


Efficienza energetica:
Classe energetica: G
Indice di prestazione energetica (EPgl): 180 kWh/mq annui