home page > Annunci immobiliari in Italia > Toscana > Pisa > Pontedera > Negozi uffici capannoni in vendita > Scheda immobile

Negozi uffici capannoni in vendita a Pontedera

COMPILA IL MODULO SOTTOSTANTE PER RICEVERE MAGGIORI INFORMAZIONI







Invia la richiesta ad altre agenzie
Accetto il trattamento dei miei dati



Casa piu' immobiliare

Via tosco-romagnola, 1434
56021 Cascina (PI)

050740158    Riferimenti: Nico Bucchi

Pontedera
Prezzo: € 380.000
G
200
Piano terra



Descrizione:
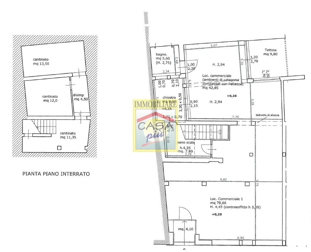
Rif: pontedera - in posizione centralissima ad elevato passaggio pedonale e veicolare, vendesi locali commerciali al piano terra con ingresso indipendente e ampie vetrine fronte strada, superficie circa 156 mq oltre 41 mq di scantinato e 18 mq di cortile interno. Possibile suddividere con arredi o pareti in cartongesso in più postazioni di lavoro. Classe energetica g. Subito libero e disponibile. €. 380.000 tratt. - rif a tutela della privacy l'indirizzo indicato potrebbe non corrispondere alla reale ubicazione dell'immobile in oggetto, ma trovarsi nelle vicinanze e godere sostanzialmente degli stessi servizi.




Caratteristiche immobile:
Codice inserzione: 1756946897
Rif. Annuncio: 1340910/97/2604
Provincia: Pisa
Comune: Pontedera
Superficie (Mq) : 200 Mq.
Tipo immobile: Negozi uffici capannoni
Stato immobile: recente
Piano: Piano terra

Costi:
Prezzo € 380.000


Efficienza energetica:
Classe energetica: G
Indice di prestazione energetica (EPgl): 300 kWh/mc annui