home page > Annunci immobiliari in Italia > Toscana > Pisa > San Miniato > appartamenti in vendita > Scheda immobile

Appartamento in vendita a San Miniato

COMPILA IL MODULO SOTTOSTANTE PER RICEVERE MAGGIORI INFORMAZIONI







Invia la richiesta ad altre agenzie
Accetto il trattamento dei miei dati



Agenzia immobiliare antonella ghizzani

Piazza matteotti, 12
50053 Empoli (FI)

0571725141    3409959715    Riferimenti: Antonella Ghizzani

San Miniato
Prezzo: € 390.000
A4
3
2
160
Piano terra



Descrizione:
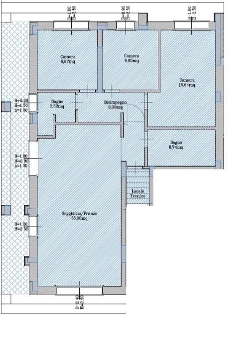
Rif: san miniato basso, nuovo 5 vani doppi servizi con ingresso indipendente, giardino e garage - rif in bel contesto residenziale, bellissimo appartamento al piano terra in fase di costruzione con ingresso indipendente. L'immobile, libero su tre lati e circondato da giardino di circa 200 mq e loggia, è composto da ampia zona soggiorno-pranzo open space di oltre 35 mq, disimpegno notte, tre camere di cui una matrimoniale, due bagni oltre al locale tecnico. Garage al piano terra. Sul appartamento 122 mq: ampi spazi ben distribuiti. L'immobile verrà consegnato finito e rifinito con materiali di eccellente qualità a disposizione e scelta dell'acquirente. Riscaldamento a pavimento, pannelli fotovoltaici. Consegna prevista primavera/estate 2027. Bella zona e ottimo contesto, posizione strategica per la vicinanza ai servizi e alla fi pi li. si precisa che l'indirizzo presente non identifica l'esatta ubicazione dell'immobile questo al fine di tutelare la privacy e la riservatezza del venditore.classe energetica a4 - rif euro 390.000




Caratteristiche immobile:
Codice inserzione: 1773884842
Rif. Annuncio: 1400349/17/1/1023
Provincia: Pisa
Comune: San Miniato
Superficie (Mq) : 160 Mq.
Tipo immobile: Appartamento
Stato immobile: nuovo
Anno costruzione/ristrutturazione: 2027
Piano: Piano terra
Camere: 3
Garage: Doppio
Tipologia giardino : Privato
Bagni: 2

Costi:
Prezzo € 390.000


Efficienza energetica:
Classe energetica: A4