home page > Annunci immobiliari in Italia > Toscana > Pisa > Santa Maria a Monte > appartamenti in vendita > Scheda immobile

Appartamento in vendita a Santa Maria a Monte

COMPILA IL MODULO SOTTOSTANTE PER RICEVERE MAGGIORI INFORMAZIONI







Invia la richiesta ad altre agenzie
Accetto il trattamento dei miei dati



Mgm bientina/s.maria a monte - ag. Immobiliare

Via francesca nord, /b 213
56020 Santa Maria a Monte (PI)

0587705347    0587757141    Riferimenti: Luca Lazzereschi

Santa Maria a Monte
Prezzo: € 155.000
A2
2
1
75
2
1



Descrizione:
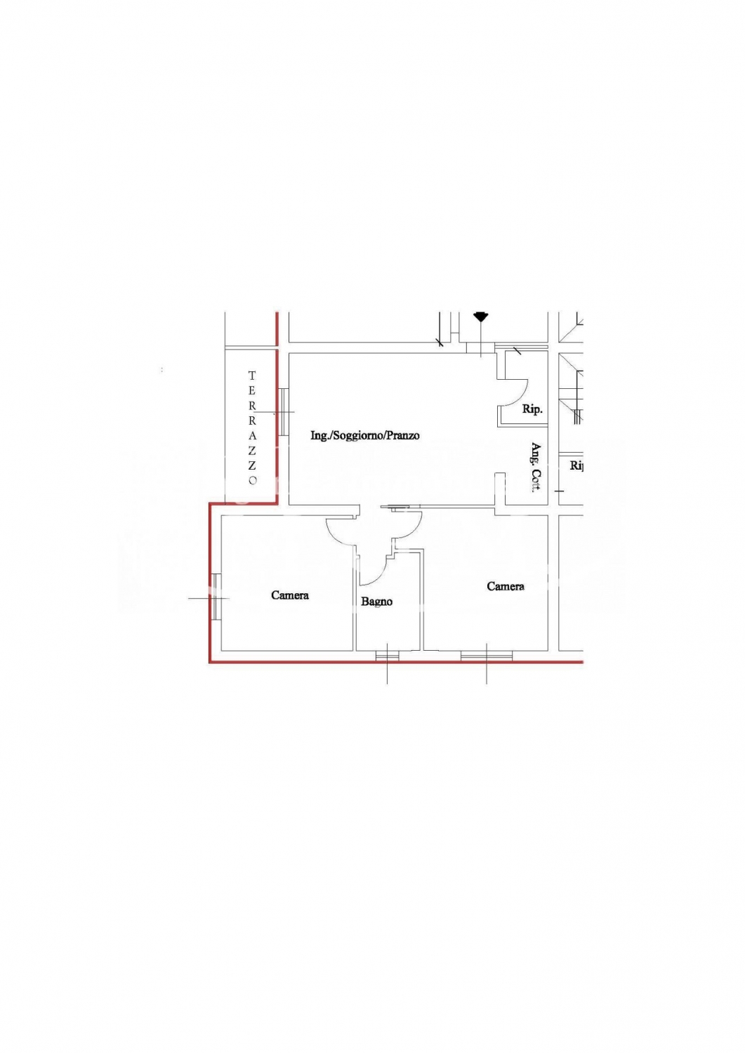
Rif: s2055 - ultima disponibilità a santa maria a monte frazione montecalvoli bassoin un piccolo complesso residenziale di recente costruzione proponiamo in vendita un appartamento posto al secondo ed ultimo piano di circa 75 mq. L'ingresso, condiviso con una sola altra unità, avviene tramite scala interna. L'abitazione si compone di soggiorno-pranzo con cucinotto separato, ripostiglio, terrazzo di circa 6 mq, disimpegno notte, camera matrimoniale, cameretta e bagno finestrato con doccia.al piano terra completano la proprietà un posto auto esclusivo e una cantinetta ad uso ripostiglio.le finiture sono personalizzabili secondo capitolato e l'appartamento è dotato di infissi interni in pvc, esterni in alluminio, riscaldamento a pavimento con pompa di calore (no gas), predisposizione per condizionatori, cappotto termico esterno e pannello fotovoltaico condominiale per i consumi comuni.ultima unità disponibile, consegna in pochi mesi! non perdere questa occasione e contattaci per maggiori informazioni o per fissare un appuntamento.classe energetica: a2 rif. S2055




Caratteristiche immobile:
Codice inserzione: 1759798015
Rif. Annuncio: 1350903/4/S2055
Provincia: Pisa
Comune: Santa Maria a Monte
Superficie (Mq) : 75 Mq.
Tipo immobile: Appartamento
Stato immobile: nuovo
Anno costruzione/ristrutturazione: 2025
Piano: 2
Camere: 2
Posti auto scoperti: 1 posto auto
Bagni: 1
Terrazze: 5

Costi:
Prezzo € 155.000


Efficienza energetica:
Classe energetica: A2
Indice di prestazione energetica (EPgl): 29.36 kWh/mq annui