Descrizione:
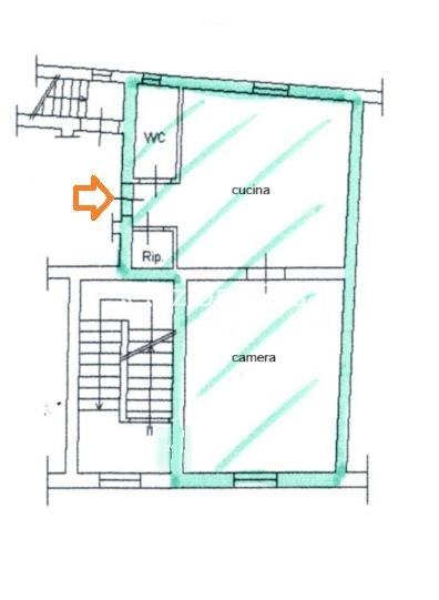
Rif: brst694 - e' in vendita in centro a santa maria a monte: un appartamento di 2 locali con una superficie di 50 mq, situato al piano primo e ultimo con ingresso per due sole unità. L'immobile, caratterizzato per l'esposizione a sud e la luminosità, richiede lavori di ristrutturazione per essere riportato al suo pieno utilizzo. Ma questo appartamento rappresenta un'opportunità di investimento unica per chi cerca una casa da personalizzare per abitazione propria o locazione. Se cerchi qualcosa di caratteristico da ristrutturare con le tue mani, questa è la tua opportunità. A questo prezzo hai una sola alternativa: il concessionario auto. chiamami velocemente per una visita al prossimo open house, perché questo appartamento non mangia il panettone. Selezione casa - comprensorio del cuoio - tel