3471098764 Riferimenti: Dott.ssa roberta Taddei
Descrizione:
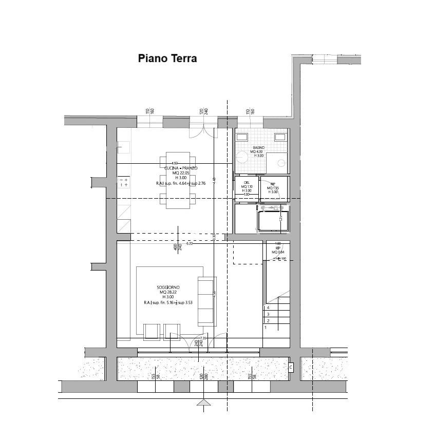
Rif: bm/4 - là dove il tempo sembra scorrere più lento, un antico rustico toscano ha ritrovato nuova vita.in posizione tranquilla e immersa nel verde, proponiamo un antico rustico toscano, completamente ristrutturato con cura e rispetto, oggi accoglie cinque residenze indipendenti, ognuna con una propria anima: antiche pietre, travi in legno, luce naturale che filtra dolcemente tra le logge e i giardini, una combinazione tra il carattere autentico dell'architettura rurale con tecnologie e comfort moderni.un rifugio autentico dove la bellezza del passato incontra l'eleganza del presente, pensato per chi cerca armonia, comfort e autenticità nel cuore della campagna toscana.la porzione angolare di mq 180 è cosù composta:caratteristiche principali• ampio soggiorno luminoso con elegante zona living con cucina a vista, moderna e funzionale• disimpegno, ripostiglio e bagno di servizio al piano terra• al piano superiore:â—¦ camera matrimoniale con bagno privato e guardarobaâ—¦ seconda camera matrimoniale spaziosa e accoglienteâ—¦ camera media ideale come studio o stanza ospitiâ—¦ bagno padronale e disimpegno• predisposizione per ascensore interno (dal piano terra al primo piano)• rifiniture personalizzabili per soddisfare ogni esigenza estetica e funzionalecomfort, tecnologia e sostenibilità• classe energetica a4 massima efficienza e risparmio sui consumi• impianti tecnologicamente avanzati e isolamento termoacustico di nuova generazione• possibilità di usufruire del mutuo green per immobili ad alta prestazione energetica• materiali naturali e finiture di pregio che uniscono design moderno e tradizione toscanaarchitettura e stilela villa 2 combina armoniosamente stile rustico toscano e architettura moderna.travi a vista, ampie aperture vetrate e linee pulite donano eleganza e luminosità, mentre i dettagli architettonici contemporanei rendono questa abitazione unica nel suo genere.un progetto pensato per chi desidera vivere in una casa efficiente, confortevole e raffinata, circondata dal verde e dalla tranquillità del contesto toscano.posizionesituata in una delle aree più ricercate di migliarino (vecchiano), la villa gode di una posizione strategica:• vicina al centro del paese e a tutti i principali servizi• a pochi minuti da pisa, lucca, viareggio e marina di vecchiano• a ridosso del parco naturale di san rossore, perfetto per chi ama la natura e la vita all'aria apertauna porzione di rustico efficiente e sostenibile, dove comfort, natura e design si incontrano.contattaci per scoprire i progetti, visionare le planimetrie e personalizzare le finiture della tua nuova casa di pregio in toscana.
| Codice inserzione: | 1760489512 |
| Rif. Annuncio: | 1353096/1338/BM/4 |
| Provincia: | Pisa |
| Comune: | Vecchiano |
| Zona: | Migliarino |
| Superficie (Mq) : | 180 Mq. |
| Tipo immobile: | Case e ville a schiera |
| Stato immobile: | nuovo |
| Camere: | 3 |
| Posti auto scoperti: | 2 posti auto |
| Tipologia giardino : | Privato |
| Bagni: | 3 |
| Prezzo | € 569.000 |