home page > Annunci immobiliari in Italia > Toscana > Pisa > Vecchiano > Case e ville a schiera in vendita > Scheda immobile

Case e ville a schiera in vendita a Vecchiano

COMPILA IL MODULO SOTTOSTANTE PER RICEVERE MAGGIORI INFORMAZIONI







Invia la richiesta ad altre agenzie
Accetto il trattamento dei miei dati



Archicasa

Via delle ardenne, /b 9
56121 Pisa

3356803599    Riferimenti: Riccardo Cosci

Vecchiano
Prezzo: € 315.000
3
3
211
Piano rialzato



Descrizione:
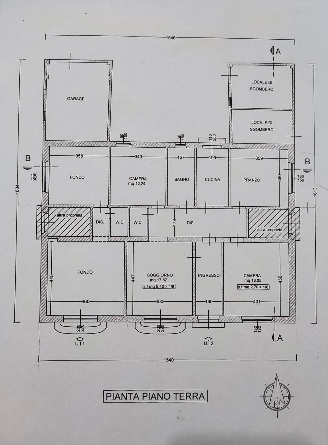
Rif: r2605 - migliarino, libero subito, grande compendio immobiliare formato da appartamento di 5 vani e fondo commerciale di 2 vani, con 3 bagni complessivi e due garages, i fondi ed i garages sono convertibili in una seconda abitazione residenziale mediante richiesta di cambio di destinazione d'uso, l'immobile consisteste nell'interezza del piano terra di una duplex con il doppio ingresso, uno per la parte già residenziale formata da ingresso, soggiorno, cucina, tre grandi camere, bagno padronale e bagno di servizio, uno per la parte commerciale formata da due grandi vani disimpegnati e bagno. Contigui all'immobile principale ci sono 2 locali di dimensioni simili, uno adibito a garage, l'altro a locale di sgombero e lavanderia. La parte dietro del complesso è corredata da un grande giardino privato, carrabile di circa 500 mq.l'immobile, che ha bisogno di un intervento di riammodernamento, si presta ad un frazionamento in due o più unità abitative uso genitori figli o ad una soluzione ricettiva data la vicinanza alla spiaggia di marina di vecchiano, alla tenuta salviati, all'ingresso della firenze mare nonchè alla versilia ed a pisa e lucca. Ed è posizionato in zona centrale con tutti i servizi raggiungibili a piedi.




Caratteristiche immobile:
Codice inserzione: 1774317333
Rif. Annuncio: 1403113/1442/R2605
Provincia: Pisa
Comune: Vecchiano
Zona: Migliarino  
Superficie (Mq) : 211 Mq.
Tipo immobile: Case e ville a schiera
Stato immobile: usato da riattare
Piano: Piano rialzato
Camere: 3
Garage: Doppio
Tipologia giardino : Privato
Bagni: 3

Costi:
Prezzo € 315.000


Efficienza energetica: