home page > Annunci immobiliari in Italia > Toscana > Pisa > Vicopisano > appartamenti in vendita > Scheda immobile

Appartamento in vendita a Vicopisano

COMPILA IL MODULO SOTTOSTANTE PER RICEVERE MAGGIORI INFORMAZIONI







Invia la richiesta ad altre agenzie
Accetto il trattamento dei miei dati



Salutini andrea agenzia immobiliare

Via pacinotti, 11
56025 Pontedera (PI)

0587810555    Riferimenti: Andrea Salutini

Vicopisano
Prezzo: € 340.000
A4
3
2
130
Piano terra
1



Descrizione:
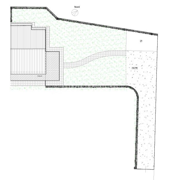
Rif: l - vicopisano --nuova costruzione -- vendesi appartamento posto al piano terra con ingresso indipendente facente parte della ristruzione di un casolare di campagna con possibilità di personalizzare le finiture. l'immobile di mq 130 e ampio giardino di mq 700 si compone in: ingresso in ampio soggiorno con cucina a vista, disimpegno notte, tre camere e due bagni. Al piano terra completa la proprietà una stanza pluriuso di mq 20. Capitolato con riscaldamento a pavimento, sistema di riscaldamento di ultima generazione con pompa di calore e impianto fotovoltaico di 6kw circa, con accumolo di 10kw circa, impianto di ventilazione meccanica controllata, impianto di climatizzazione estiva, predisposizione di impianto di allarme e addolcitore, infissi in pvc. Tetto in legno lamellare a vista. Classe energetica: a4 - rif. 1861-l




Caratteristiche immobile:
Codice inserzione: 1760575939
Rif. Annuncio: 1266958/1361/1861-L
Provincia: Pisa
Comune: Vicopisano
Superficie (Mq) : 130 Mq.
Tipo immobile: Appartamento
Stato immobile: nuovo
Piano: Piano terra
Camere: 3
Posti auto scoperti: 1 posto auto
Tipologia giardino : Privato
Bagni: 2

Costi:
Prezzo € 340.000


Efficienza energetica:
Classe energetica: A4
Indice di prestazione energetica (EPgl): 32323 kWh/mq annui