home page > Annunci immobiliari in Italia > Toscana > Pistoia > Agliana > Negozi uffici capannoni in vendita > Scheda immobile

Negozi uffici capannoni in vendita a Agliana

COMPILA IL MODULO SOTTOSTANTE PER RICEVERE MAGGIORI INFORMAZIONI







Invia la richiesta ad altre agenzie
Accetto il trattamento dei miei dati



Nuova immobiliare di pietro ruotolo

Via venezia
51031 Agliana (PT)

0574.710804

Agliana
Prezzo: € 124.000
2
100



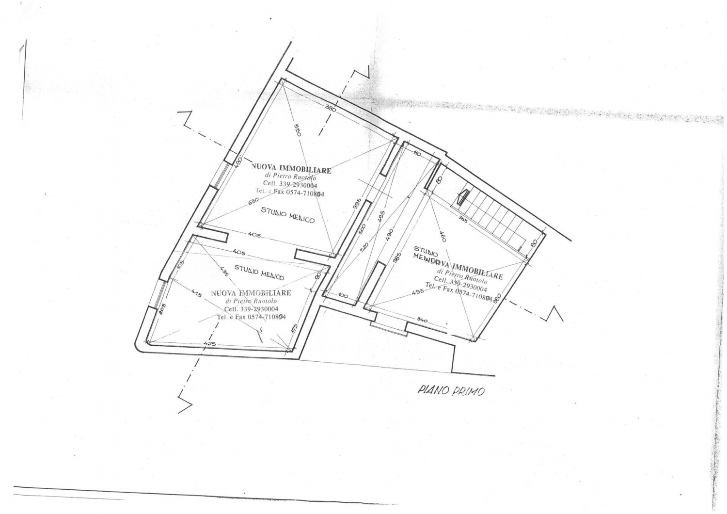
Descrizione:
Agliana centro, ottima zona, immobile adibito a studi medici su due piani di circa 100 mq, composto al pt: da ristrutturare sala d'attesa con studi medici e bagni, al p1 tre locali studi medici e all'esterno due posti auto esclusivi, euro 124000 tratt ce: nd rif 029b classe energetica: non indicata




Caratteristiche immobile:
Codice inserzione: 1770952249
Rif. Annuncio: 029b
Provincia: Pistoia
Comune: Agliana
Superficie (Mq) : 100 Mq.
Tipo immobile: Negozi uffici capannoni
Bagni: 2

Costi:
Prezzo € 124.000


Efficienza energetica: