home page > Annunci immobiliari in Italia > Toscana > Pistoia > Quarrata > Negozi uffici capannoni in affitto > Scheda immobile

Negozi uffici capannoni in affitto a Quarrata

COMPILA IL MODULO SOTTOSTANTE PER RICEVERE MAGGIORI INFORMAZIONI







Invia la richiesta ad altre agenzie
Accetto il trattamento dei miei dati



Castagnoli gabriele

Via giacomo matteotti, 68
51031 Agliana (PT)

3351898488    Riferimenti: Mailo Castagnoli

Quarrata
Prezzo: € 1.900
2
350
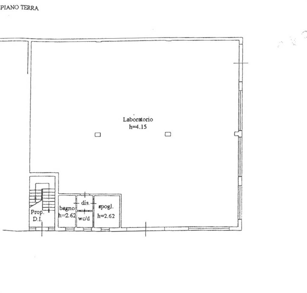
Piano terra



Descrizione:
Riferimento immobile: 2075am - a quarrata proponiamo in locazione un magazzino di recente edificazione, situato in zona strategica e facilmente accessibile, ideale per attività di deposito o per semplici lavorazioni non rumorose.l'immobile, luminosissimo e ottimamente areato, si distingue per la presenza di due ingressi carrabili che agevolano le operazioni di carico e scarico anche con mezzi pesanti.caratteristiche principali:superficie interna ad uso magazzino di deposito o lavorazione leggeraaltezza interna 4,15 mt.pavimento industrialedue ingressi carrabiliampio piazzale esterno privato, perfetto per la movimentazione dei mezzispogliatoio e due servizi igieniciimmobile in ottime condizioniperfetto per aziende che necessitano di un deposito funzionale, ben collegato e pronto all'uso.gli indirizzi riportati non sono esatti ma indicativi della zona dell'immobile.per ulteriori informazioni o per fissare un appuntamento, non esitare a contattarci.chiamando il (tre tre cinque uno otto nove otto quattro otto sei), contattati l'agente immobiliare per questo immobile. Attivo anche il canale whatsapp sul solito numero. Classe energetica: e




Caratteristiche immobile:
Codice inserzione: 1769488665
Rif. Annuncio: 2075AM
Provincia: Pistoia
Comune: Quarrata
Superficie (Mq) : 350 Mq.
Tipo immobile: Negozi uffici capannoni
Stato immobile: usato
Piano: Piano terra
Bagni: 2

Costi:
Prezzo € 1.900


Efficienza energetica: