home page > Annunci immobiliari in Italia > Toscana > Prato > Montemurlo > Negozi uffici capannoni in affitto > Scheda immobile

Negozi uffici capannoni in affitto a Montemurlo

COMPILA IL MODULO SOTTOSTANTE PER RICEVERE MAGGIORI INFORMAZIONI







Invia la richiesta ad altre agenzie
Accetto il trattamento dei miei dati



Investim di tofani francesca

Via delle fonti n.59
59100 Prato

0574207565    0574207565

Montemurlo
Prezzo: € 2.700
G
3
370
Ultimo piano



Descrizione:
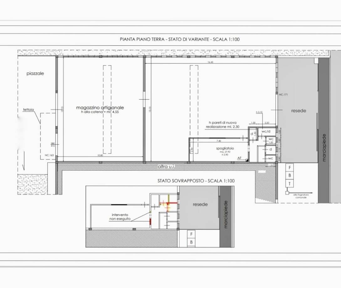
Montemurlo, in ottima posizione, capannone di ca. 370 mq. Con piazzale frontale di ca. 70 mq. E resede deragli esclusiva libero tra qualche mese.per informazioni rivolgersi in agenzia. Classe energetica: g epi: 175 kwh/m3 anno




Caratteristiche immobile:
Codice inserzione: 1765162299
Rif. Annuncio: 380 aff
Provincia: Prato
Comune: Montemurlo
Superficie (Mq) : 370 Mq.
Tipo immobile: Negozi uffici capannoni
Stato immobile: usato
Piano: Ultimo piano
Bagni: 3

Costi:
Prezzo € 2.700


Efficienza energetica:
Classe energetica: G
Indice di prestazione energetica (EPgl): 175 kWh/mc annui