home page > Annunci immobiliari in Italia > Toscana > Siena > Asciano > Case e ville a schiera in vendita > Scheda immobile

Case e ville a schiera in vendita a Asciano

COMPILA IL MODULO SOTTOSTANTE PER RICEVERE MAGGIORI INFORMAZIONI







Invia la richiesta ad altre agenzie
Accetto il trattamento dei miei dati



Toscana domus immobiliare

Viale cavour, 94
53100 Siena

0577058145    Riferimenti: Katiuscia Pierini

Asciano
Prezzo: € 180.000
1
2
71
Piano terra
2



Descrizione:
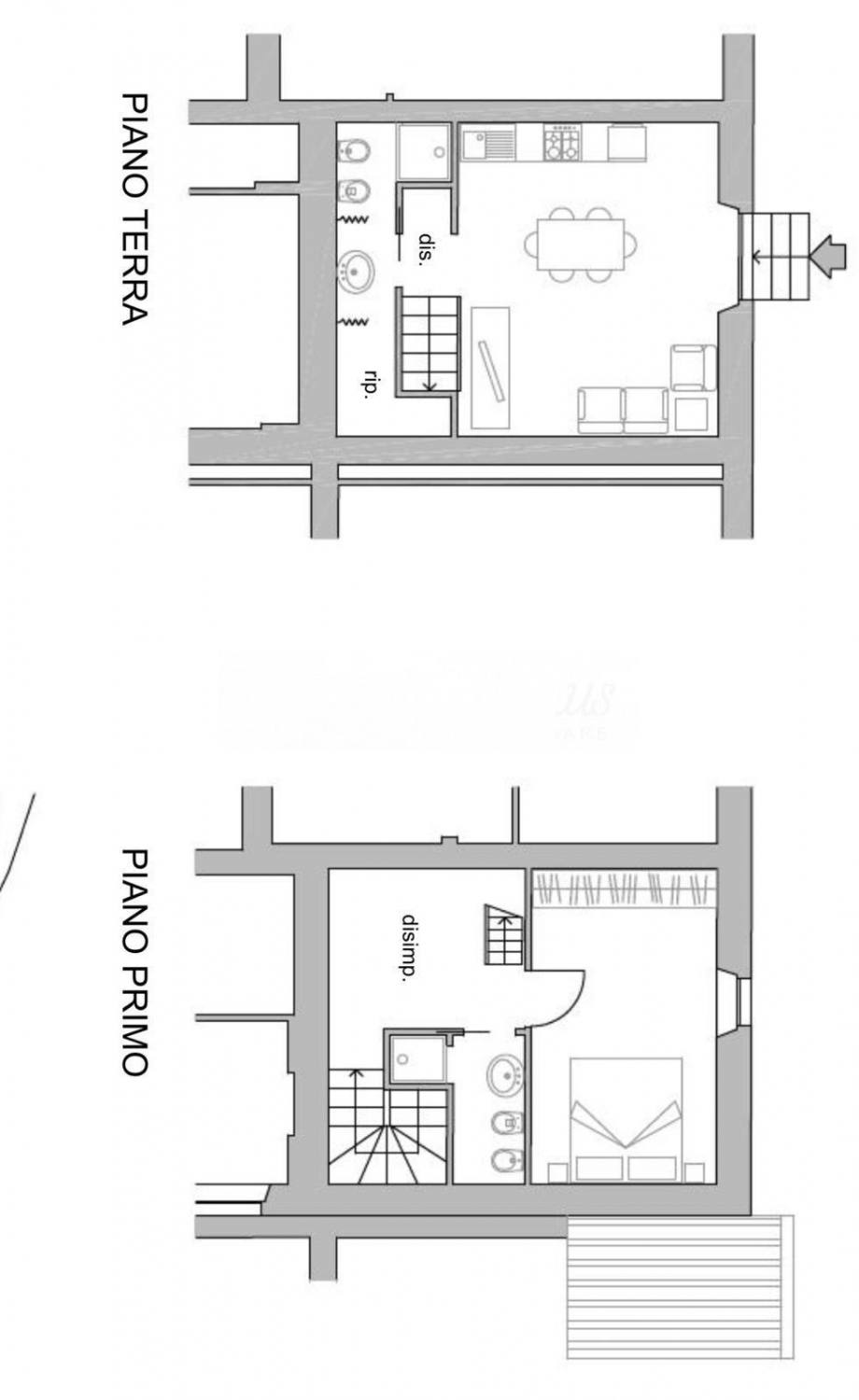
Rif: v740 - siena nella parte sud in posizione panoramica in cima ad un poggetto , con vista panoramica nella campagna, porzioni di casolare di varie metrature in vendita completamente ristrutturatequesta porzione ha una metratura di circa 71 mq piu' locali accessori di 21 mq.l'immobile ha entrata indipendente da ampio giardino privato. Due posti auto privati.si sviluppa su due piani ed e' composta a piano terra da grande soggiorno, cucina , bagno.primo piano camera piu' bagno. Piano secondo ampia mansarda.richiesta 180000




Caratteristiche immobile:
Codice inserzione: 1772070791
Rif. Annuncio: 1084866/1170/v740
Provincia: Siena
Comune: Asciano
Superficie (Mq) : 71 Mq.
Tipo immobile: Case e ville a schiera
Stato immobile: ristrutturato
Piano: Piano terra
Camere: 1
Posti auto scoperti: 2 posti auto
Tipologia giardino : Privato
Bagni: 2

Costi:
Prezzo € 180.000


Efficienza energetica: