0577983697 Riferimenti: Marcella Serchi
 2
						
						2					 2
						
						2					 110
						
						110					 1
						
						1					
						
						Descrizione:
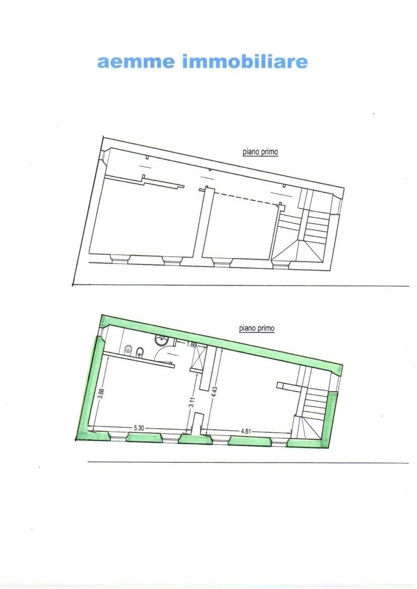
Rif: in centro, a due passi da piazza arnolfo, appartamento terratetto con ingresso indipendente, che sarà oggetto di ristrutturazione totale a nuovo, per complessivi 120 mq. Circa composto da: ingresso al piano terra; soggiorno, cucina abitabile, bagno finestrato e ripostiglio al primo piano; disimpegno, due camere matrimoniali, secondo bagno finestrato al secondo piano. L'immobile allo stato attuale può essere personalizzato in base alle esigenze dell'acquirente sia per quanto attiene alla disposizione sia alle finiture.nel cuore di colle di val d'elsa, proponiamo in vendita un elegante appartamento di 4 locali, situato all'ultimo piano con ingresso indipendente. Questo immobile, dalla superficie di 110 mq, è stato recentemente ristrutturato e offre un'opportunità unica per chi cerca comfort e modernità in un contesto storico. La proprietà, posta al 1° piano, è stata rinnovata con finiture di pregio e materiali di alta qualità, garantendo un ambiente accogliente e funzionale. Il prezzo di 200.000 euro rende questo appartamento un ottimo investimento per chi desidera abitare in una location prestigiosa e ben servita. [classe energetica: in attesa di certificazione]					
| Codice inserzione: | 1761094263 | 
| Rif. Annuncio: | 1354843/1182/785 | 
| Provincia: | Siena | 
| Comune: | Colle di Val d'Elsa | 
| Superficie (Mq) : | 110 Mq. | 
| Tipo immobile: | Appartamento | 
| Stato immobile: | ristrutturato | 
| Piano: | 1 | 
| Camere: | 2 | 
| Bagni: | 2 | 
| Prezzo | € 200.000 |