home page > Annunci immobiliari in Italia > Toscana > Siena > Montepulciano > Case e ville indipendenti in vendita > Scheda immobile

Case e ville indipendenti in vendita a Montepulciano

COMPILA IL MODULO SOTTOSTANTE PER RICEVERE MAGGIORI INFORMAZIONI







Invia la richiesta ad altre agenzie
Accetto il trattamento dei miei dati



Eureka immobiliare di mario vittorio papini

Via roma 152
06061 Castiglione del Lago (PG)

0759680270    Riferimenti: MARIO VITTORIO PAPINI

Montepulciano
Prezzo: € 260.000
4
1
943
1
1



Descrizione:
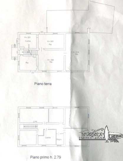
Casale abitabile in due livelli di mq 280 composto da: piano terra, rustico, cucina, stalle. Piano primo, cucina, sala, quattro camere, e bagno. Completa la proprietà un terreno di mq 2110 circa, con mq 271 di annessi. Il riscaldamento viene alimentato con bombola a gasolio. L'immobile attualmente è abitazione. Si presta molto bene anche per svolgere attività turistica, essendo solo a km 11 da montepulciano.




Caratteristiche immobile:
Codice inserzione: 1772077699
Rif. Annuncio: CAR 364
Provincia: Siena
Comune: Montepulciano
Zona: Valiano  
Superficie (Mq) : 943 Mq.
Tipo immobile: Case e ville indipendenti
Stato immobile: usato
Piano: 1
Camere: 4
Posti auto scoperti: 1 posto auto
Bagni: 1

Costi:
Prezzo € 260.000


Efficienza energetica:
Riscaldamento: autonomo