home page > Annunci immobiliari in Italia > Toscana > Siena > Monteriggioni > appartamenti in vendita > Scheda immobile

Appartamento in vendita a Monteriggioni

COMPILA IL MODULO SOTTOSTANTE PER RICEVERE MAGGIORI INFORMAZIONI







Invia la richiesta ad altre agenzie
Accetto il trattamento dei miei dati



Tafy di barontini stefano e c. S.a.s.

Piazza indipendenza, 2
53100 Siena

0577.47921    0577.224364

Monteriggioni
Prezzo: € 630.000
A1
3
3
152
1



Descrizione:
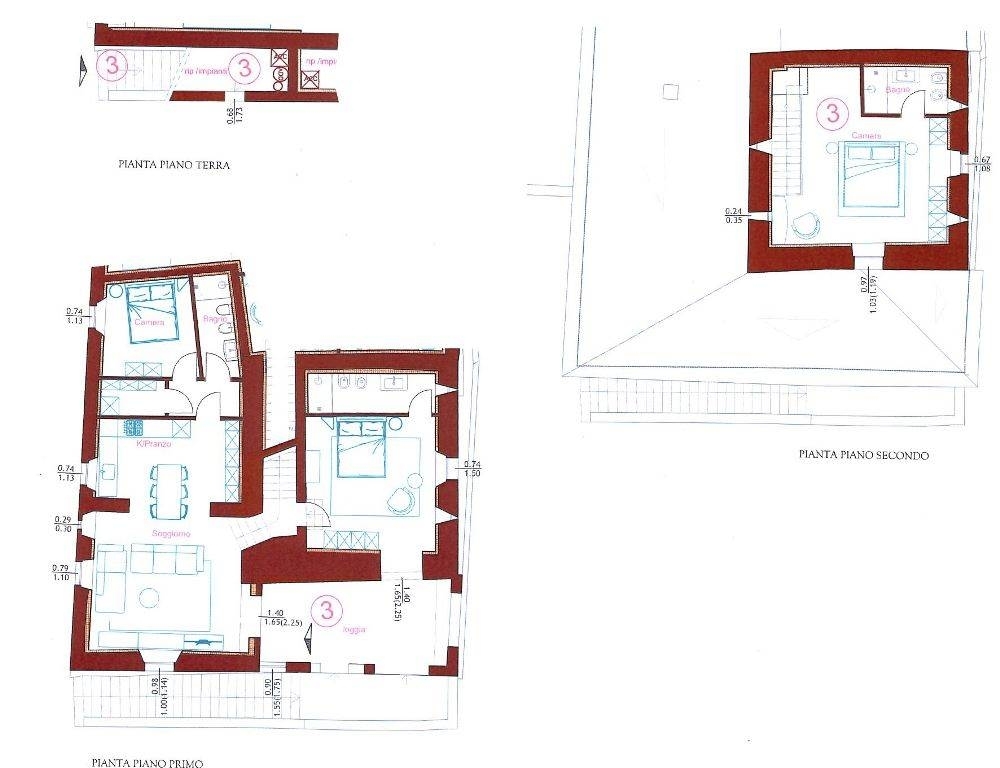
A quercegrossa, pochi km a nord di siena, curatissima ristrutturazione di un piccolo borgo, capitolato alto: con piscina comune panoramica, club house comune con sauna e palestra, aree pic-nic con barbecue nella zona boscosa. Accorgimenti tecnologici: riscaldamento a pavimento con pompa di calore, predisposizione allarme, impianto fotovoltaico sulla pergola che copre i posti auto per sostenere i consumi dei servizi a comune, area parcheggio per ospiti.soluzione castello 3: ingresso indipendente al primo piano da scala esterna in pietra e loggia di 17 mq: grande sala con open space pranzo e cucina, due camere matrimoniali, guardaroba, doppi servizi; al secondo piano (torretta-altana) grande camera matrimoniale con bagno. Classe energetica: a




Caratteristiche immobile:
Codice inserzione: 1761097880
Rif. Annuncio: R840/cast3
Provincia: Siena
Comune: Monteriggioni
Superficie (Mq) : 152 Mq.
Tipo immobile: Appartamento
Stato immobile: ristrutturato
Piano: 1
Camere: 3
Bagni: 3

Costi:
Prezzo € 630.000


Efficienza energetica:
Classe energetica: A1