home page > Annunci immobiliari in Italia > Toscana > Siena > Poggibonsi > Negozi uffici capannoni in vendita > Scheda immobile

Negozi uffici capannoni in vendita a Poggibonsi

COMPILA IL MODULO SOTTOSTANTE PER RICEVERE MAGGIORI INFORMAZIONI







Invia la richiesta ad altre agenzie
Accetto il trattamento dei miei dati



Agenzia immobiliare romano

Via montegrappa 127
53036 Poggibonsi (SI)

0577938558

Poggibonsi
Prezzo: € 160.000
G
1
126
Piano terra



Descrizione:
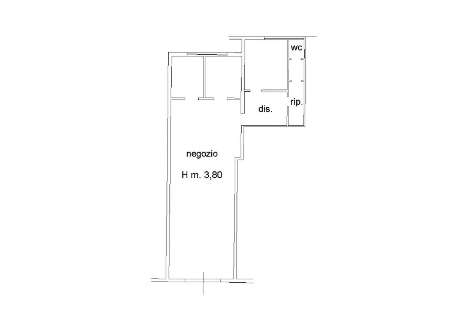
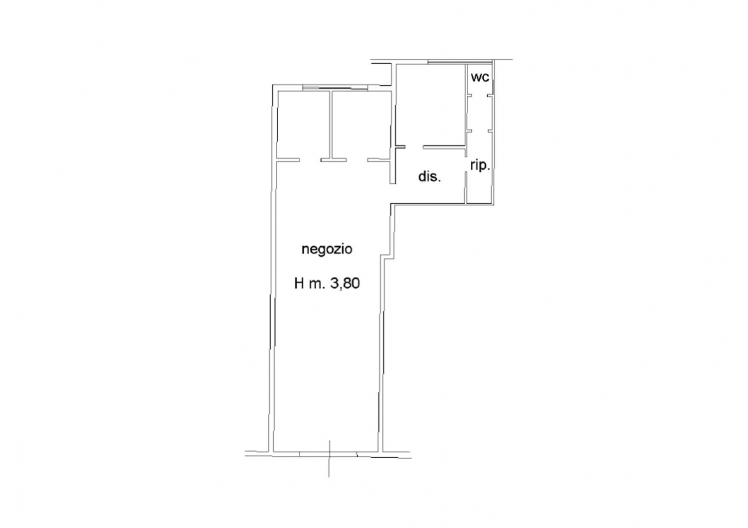
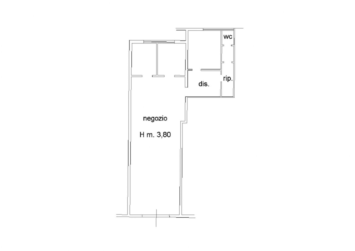
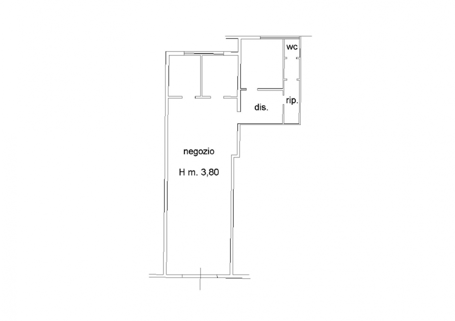
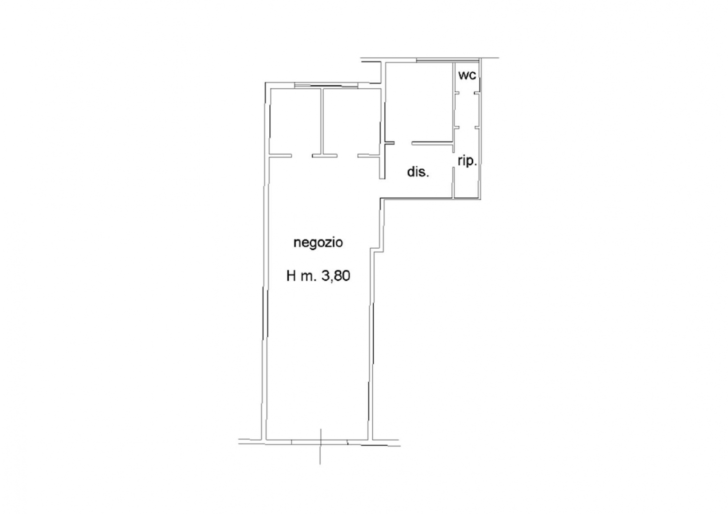
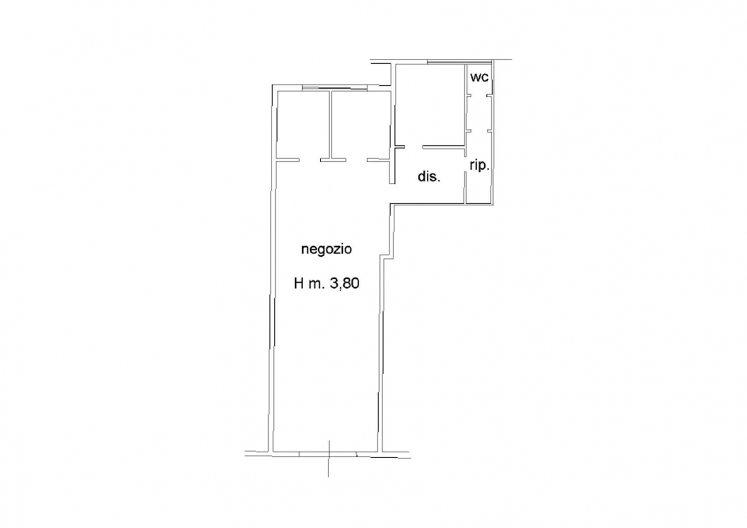
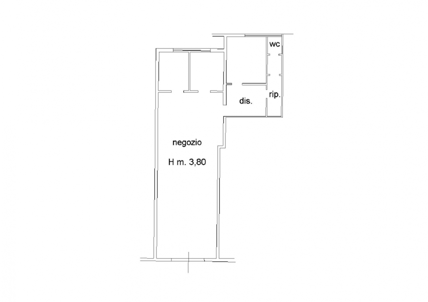
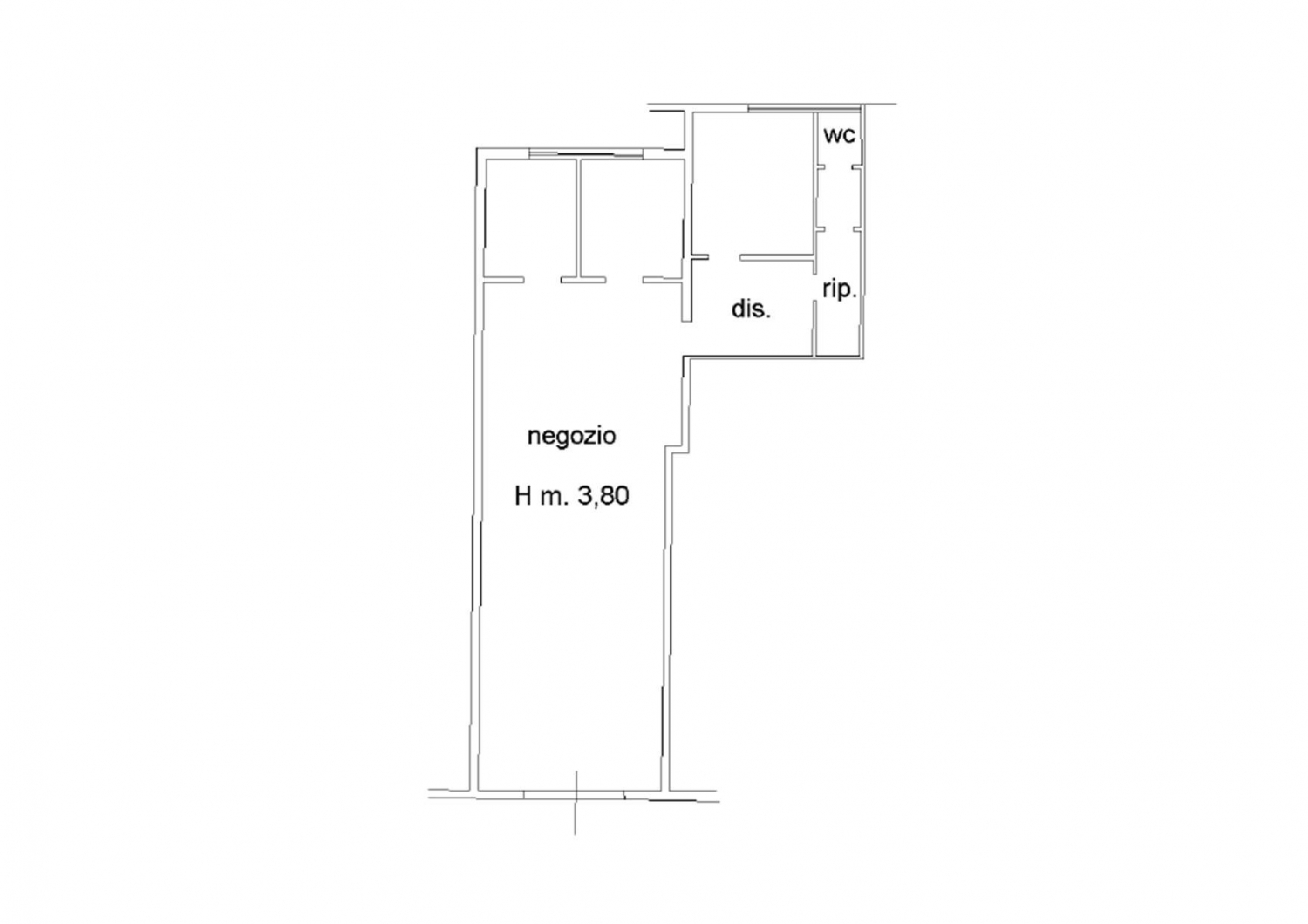
Poggibonsi zona semicentralevendesi locale commerciale fronte strada di circa 129 m.l'immobile, immediatamente disponibile, è composto da:ampio spazio vendita/negozio, tre vani uso ufficio o magazzino, ripostiglio, bagno.soluzione ideale per attività commerciali, studi professionali o magazzini con punto vendita, grazie alla posizione ben visibile e facilmente raggiungibile. Classe energetica: g




Caratteristiche immobile:
Codice inserzione: 1764903156
Rif. Annuncio: 3365V
Provincia: Siena
Comune: Poggibonsi
Superficie (Mq) : 126 Mq.
Tipo immobile: Negozi uffici capannoni
Stato immobile: usato
Piano: Piano terra
Bagni: 1

Costi:
Prezzo € 160.000


Efficienza energetica:
Classe energetica: G