home page > Annunci immobiliari in Italia > Toscana > Siena > Poggibonsi > Negozi uffici capannoni in vendita > Scheda immobile

Negozi uffici capannoni in vendita a Poggibonsi

COMPILA IL MODULO SOTTOSTANTE PER RICEVERE MAGGIORI INFORMAZIONI







Invia la richiesta ad altre agenzie
Accetto il trattamento dei miei dati



Agenzia immobiliare romano

Via montegrappa 127
53036 Poggibonsi (SI)

0577938558

Poggibonsi
Prezzo: € 157.000
E
4
225
Ultimo piano



Descrizione:
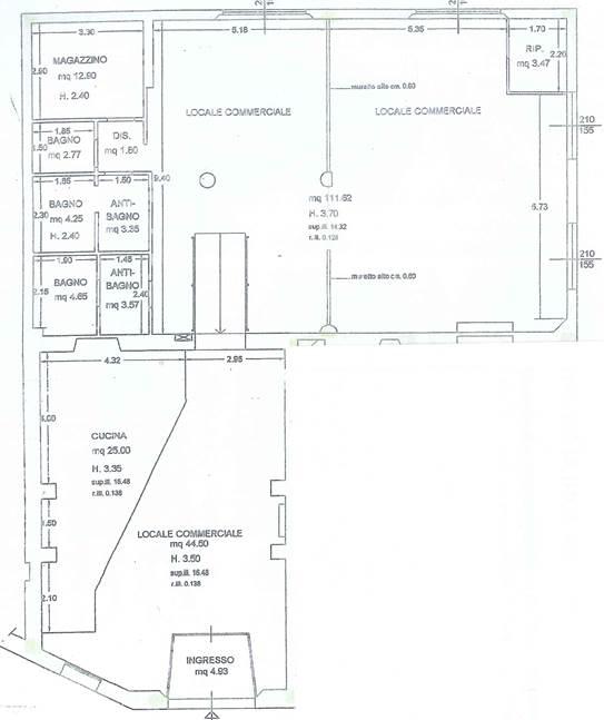
In vendita a poggibonsi, in posizione semicentrale e facilmente accessibile, locale commerciale caratterizzato da ambienti funzionali e ben distribuiti.l'immobile è composto da tre locali principali, ideali per diverse tipologie di attività, oltre a una cucina dotata di canna fumaria, elemento che lo rende particolarmente adatto anche per uso ristorativo. Sono presenti quattro servizi igienici, tutti predisposti per l'accesso a persone con disabilità, a garanzia di massima fruibilità e conformità alle normative vigenti.completa la proprietà un magazzino di circa 13 mq, perfetto come spazio di supporto per stoccaggio o deposito.la soluzione rappresenta un'ottima opportunità per chi desidera avviare o trasferire la propria attività in una zona ben servita e con buona visibilità. classe energetica: e




Caratteristiche immobile:
Codice inserzione: 1775699487
Rif. Annuncio: 3435V
Provincia: Siena
Comune: Poggibonsi
Superficie (Mq) : 225 Mq.
Tipo immobile: Negozi uffici capannoni
Piano: Ultimo piano
Bagni: 4

Costi:
Prezzo € 157.000


Efficienza energetica:
Classe energetica: E