Descrizione:
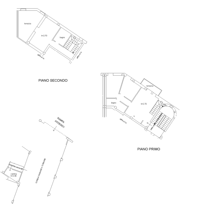
Sovicille (SI Vendesi appartamento di recente costruzione su due livelli - collegati tra loro con scala interna - di circa 110 m² inserito in un piccolo contesto condominiale, in fabbricati di due piani senza ascensore.
L'immobile è in perfette condizioni, dispone di infissi termici con ottime rifiniture ed è così composto:
primo livello: sala a vista con angolo cottura e affaccio su terrazza - disimpegno - due camere - bagno
secondo livello: disimpegno - bagno - camera da letto matrimoniale con affaccio su terrazza panoramica di circa 20 m²
completano la proprietà una cantina e un garage di circa 18 m²
Riscaldamento autonomo
CLASSE ENERGETICA IN CORSO DI DEFINIZIONE
Rif: MatSov2025
richiesta: € 185.000