home page > Annunci immobiliari in Italia > Trentino-Alto Adige > Bolzano > Castelrotto > appartamenti in vendita > Scheda immobile

Appartamento in vendita a Castelrotto

COMPILA IL MODULO SOTTOSTANTE PER RICEVERE MAGGIORI INFORMAZIONI







Invia la richiesta ad altre agenzie
Accetto il trattamento dei miei dati



Ortisei immobiliare dolomiti

Via rezia 273/a
39046 Ortisei (BZ)

0471786156

Castelrotto
Prezzo: info in agenzia
A1
2
2
105
2
1



Descrizione:
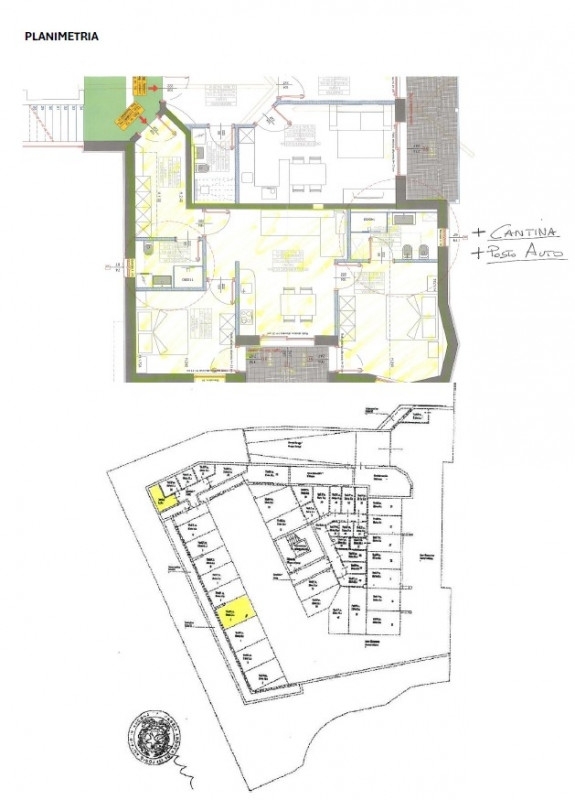
Nel grazioso paese di roncadizza, a pochi minuti da ortisei, proponiamo in vendita uno splendido appartamento, totalmente arredato a nuovo e curato nei minimi particolari. questo immobile è un buon compromesso per chi cerca la tranquillità ma allo stesso tempo la comodità dei servizi necessari per la vita di ogni giorno. Gode di un ottima vista anche per il fatto che l'appartamento, tutto mansardato, si trova all'ultimo piano. L'appartamento è cosù composto: ingresso, una camera doppia grande, un bagno, soggiorno con angolo cottura, una camera matrimoniale con bagno privato.completo di tutti i confort possibili tra cui terrazzo di proprietà, posto auto in garage ed ampia cantina.maggiori informazioni in ufficio




Caratteristiche immobile:
Codice inserzione: 1759201552
Rif. Annuncio: VG150
Provincia: Bolzano
Comune: Castelrotto
Zona: Roncadic (Roncadizza)  
Superficie (Mq) : 105 Mq.
Tipo immobile: Appartamento
Stato immobile: usato
Anno costruzione/ristrutturazione: 2016
Piano: 2
Camere: 2
Arredato:
Garage: Singolo
Posti auto scoperti: 1 posto auto
Bagni: 2
Terrazze: 1

Costi:
Prezzo info in agenzia


Efficienza energetica:
Classe energetica: A1
Indice di prestazione energetica (EPgl): 24 kWh/mq annui
Riscaldamento: autonomo a pavimento