Descrizione:
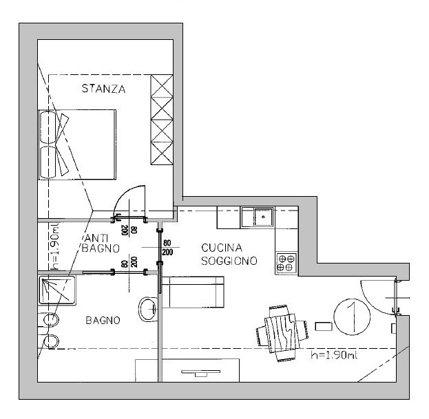
**attico in vendita - eleganza e comfort nel cuore della città di pergine valsugana** miniappartamento di 52 mq utili, situato al terzo ed ultimo piano di un elegante edificio con ascensore. La mansarda alta presenta splendide travi a vista che conferiscono un tocco di carattere e calore all'ambiente. Composto da un luminoso soggiorno con cucina a vista, una spaziosa stanza matrimoniale e un bagno finestrato, questo attico è perfetto per chi cerca un rifugio moderno e accogliente.l'immobile, costruito nel 2025, offre anche un ripostiglio e disbrigo, garantendo praticità e comfort. I posti auto condominiali a piano strada rendono la vita quotidiana ancora più comoda. Consegna prevista per inizio estate 2026, questa è un'opportunità imperdibile per chi desidera investire in una casa nuova e funzionale, adatta anche per persone con mobilità ridotta.non perdere l'occasione di vivere in un ambiente unico, dove il design contemporaneo incontra la funzionalità. Contattaci per maggiori informazioni e per prenotare una visita!