Descrizione:
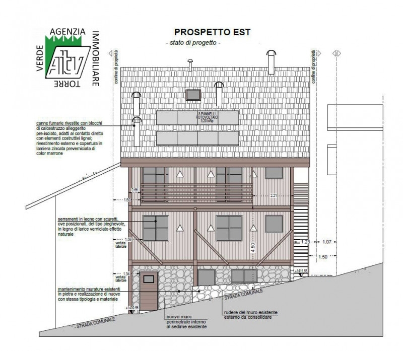
Nella meravigliosa cornice della val di rabbi, precisamente nella località cavallar, proponiamo un'opportunità unica: ruderi di maso da ricostruire. L'immobile si estende su una superficie totale di 300 mq e il progetto per la sua ricostruzione è già stato approvato e concessionato.il piano prevede la realizzazione di quattro unità abitative: tre appartamenti con due camere da letto ciascuno e un miniappartamento composto da una sola stanza. Inoltre, i proprietari sono disposti a valutare la cessione dell'intera proprietà mantenendo riservata l'occupazione di uno degli appartamenti con due camere.questa affascinante proprietà è ubicata in una posizione comoda e facilmente accessibile anche nei mesi invernali, offrendo al contempo viste panoramiche mozzafiato sulla natura circostante. La val di rabbi è rinomata per le sue bellezze naturali e offre numerose opportunità per attività all'aperto come escursioni e relax immersi nel verde.non perdere questa straordinaria occasione! contatta subito l'agenzia referenziata per ulteriori dettagli o per organizzare una visita.