home page > Annunci immobiliari in Italia > Trentino-Alto Adige > Trento > Rovereto > Negozi uffici capannoni in vendita > Scheda immobile

Negozi uffici capannoni in vendita a Rovereto

COMPILA IL MODULO SOTTOSTANTE PER RICEVERE MAGGIORI INFORMAZIONI







Invia la richiesta ad altre agenzie
Accetto il trattamento dei miei dati



Quimmo agency

Via galileo galilei 6
48018 Faenza (RA)

0299944698

Rovereto
Prezzo: € 420.000
F
3
547
1



Descrizione:
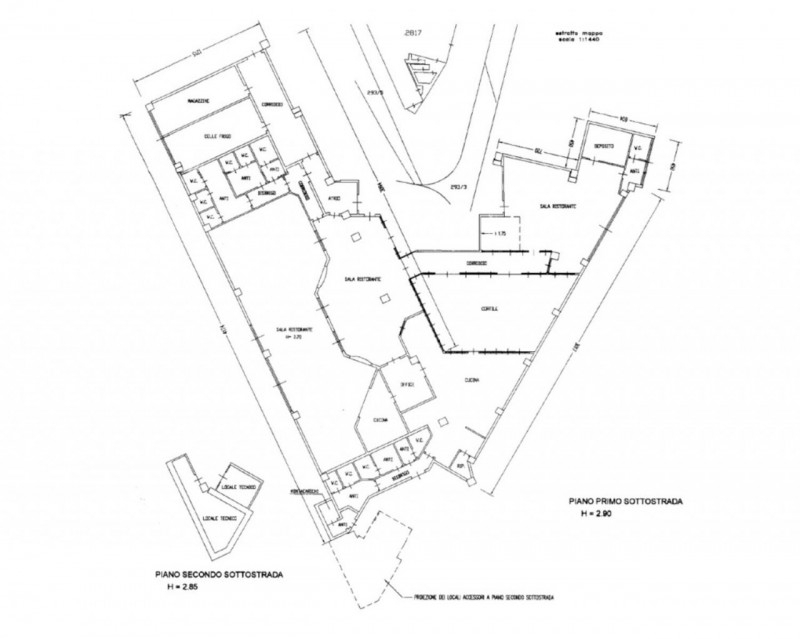
In zona commerciale strategica di rovereto, precisamente in via pasqui 10, proponiamo in vendita ampio locale commerciale situato al primo piano interrato di un centro commerciale a pochi minuti da corso rosmini, viale trento e dalla ss12 del brennero.l'immobile, con precedente destinazione a ristorante, offre una struttura articolata e funzionale. Al suo interno si trovano ampie sale destinate alla ristorazione, una cucina separata con accessi dedicati, magazzini e locali tecnici ben distribuiti, servizi igienici multipli per clienti e personale, oltre a vari spazi di servizio adatti a differenti esigenze operative. Completano la proprietà due posti auto.l'immobile necessita di interventi di ristrutturazione per essere riportato a piena funzionalità, rappresentando cosù un'opportunità interessante per chi desidera personalizzare lo spazio secondo le proprie esigenze o rilanciare un'attività nel settore della ristorazione o servizi alla persona. Soluzione ideale per chi cerca uno spazio commerciale con visibilità, facilità di accesso e ottime prospettive di valorizzazione.superficie locale: c.a. 547 mq.




Caratteristiche immobile:
Codice inserzione: 1774925289
Rif. Annuncio: 2536002
Provincia: Trento
Comune: Rovereto
Superficie (Mq) : 547 Mq.
Tipo immobile: Negozi uffici capannoni
Stato immobile: usato da riattare
Posti auto scoperti: 1 posto auto
Bagni: 3

Costi:
Prezzo € 420.000


Efficienza energetica:
Classe energetica: F
Riscaldamento: autonomo