home page > Annunci immobiliari in Italia > Umbria > Perugia > Cannara > Case e ville indipendenti in vendita > Scheda immobile

Case e ville indipendenti in vendita a Cannara

COMPILA IL MODULO SOTTOSTANTE PER RICEVERE MAGGIORI INFORMAZIONI







Invia la richiesta ad altre agenzie
Accetto il trattamento dei miei dati



Immobili all'asta

Viale sabotino 4
20121 Milano

0280888267    Riferimenti: Ivano De Natale

Cannara
Prezzo: € 100.754
F
2
211
Ultimo piano



Descrizione:
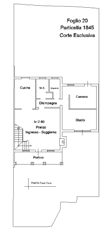
Abitazione all'asta in via assisi, cannara (pg)si propone il diritto di piena proprietà su immobile ad uso residenziale sito in via assisi 3/c, nel comune di cannara (pg).nello specifico si tratta di un abitazione, composta da:al piano terra - ingresso- portico- soggiorno- cucina- disimpegno- bagno- studio- camera.al piano primo- due camere- bagno- ripostiglio - camera con bagno- balcone- sottotetto non abitabileaccessori- area esclusiva.l'unità risulta avere una superficie complessiva di circa 211mq.dati catastalifoglio 20 particella 1845 categoria a/7 (abitazione in villini), classe 1, consistenza 9,5 vani, rendita € 735,95.chi siamoimmobiliallasta.it aiuta le persone a comprare casa all'asta e migliorare la qualità della loro vita senza correre rischi, grazie ad una piattaforma specializzata in aste immobiliari sviluppata intorno alle vere esigenze di chi cerca casa all'asta e ad un team di 30 professionisti esperti dedicato, che ti guida passo passo in un acquisto sicuro e certificato da una tripla garanzia sull'immobile e sul servizio. a differenza delle agenzie troverai: + varietà: gestiamo migliaia di immobili ogni mese+ aiuto concreto: consulenti focalizzati nell'aiutarti a raggiungere il tuo obiettivo+ tranquillità: tripla garanzia che ti tutela da ogni rischio sull'acquistoalcuni risultati oggettivi nell'ultimo anno e mezzo:- +500 clienti portati all'asta - +200 case aggiudicate, per un valore totale di 15 milioni- +7 milioni risparmiati nell'acquistocontattaci subito per parlare con uno dei nostri consulenti che ti aiuterà a trovare la casa all'asta senza correre rischi.




Caratteristiche immobile:
Codice inserzione: 1757990454
Rif. Annuncio: ST12134
Provincia: Perugia
Comune: Cannara
Superficie (Mq) : 211 Mq.
Tipo immobile: Case e ville indipendenti
Stato immobile: usato
Anno costruzione/ristrutturazione: 1960
Piano: Ultimo piano
Bagni: 2

Costi:
Prezzo € 100.754


Efficienza energetica:
Classe energetica: F
Indice di prestazione energetica (EPgl): 175 kWh/mq annui