home page > Annunci immobiliari in Italia > Umbria > Terni > Orvieto > Negozi uffici capannoni in vendita > Scheda immobile

Negozi uffici capannoni in vendita a Orvieto

COMPILA IL MODULO SOTTOSTANTE PER RICEVERE MAGGIORI INFORMAZIONI







Invia la richiesta ad altre agenzie
Accetto il trattamento dei miei dati



Quimmo agency

Via galileo galilei 6
48018 Faenza (RA)

0299944698

Orvieto
Prezzo: € 425.000
C
1
1067



Descrizione:
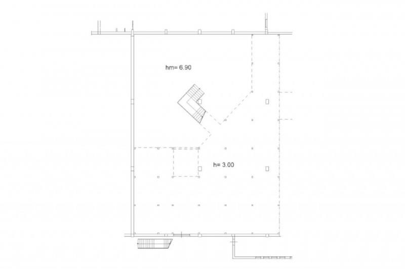
Nella zona industriale fontanelle di bardano, nel comune di orvieto (tr), in via dei vasari n° 15, si vende una porzione di un fabbricato commerciale sviluppato su due livelli e con piazzale esterno comune alle altre unità immobiliari. L'unità immobiliare al piano terra è composta da un ampio locale suddiviso in due zone con diversa altezza: una a tutta altezza, di 6,90 m ed una seconda zona, soppalcata con altezza di 3,00 m circa sotto il soppalco. L'altezza dell'area soppalcata varia tra i 2,50 m e i 5,10 m ed ha accesso da scala interna. All'interno dell'unità imobiliare è presente anche un'area servizi.la zona industriale, nel quale è posizionata l'unità immobiliare, dista circa 6 km. Dall'ingresso autostradale dell'autostrada a1superficie lorda al piano terra adibita ad area commerciale-magazzino: 652,00 mq.superficie lorda zona servizi al piano terra: 18,00 mq.superficie lorda al piano primo adibita ad area commerciale-magazzino: 397,00 mqclasse energetica: 'c'indice di prestazione energetica 403.710 kwh/mq anno.




Caratteristiche immobile:
Codice inserzione: 1757386844
Rif. Annuncio: 24986
Provincia: Terni
Comune: Orvieto
Superficie (Mq) : 1067 Mq.
Tipo immobile: Negozi uffici capannoni
Stato immobile: usato
Bagni: 1

Costi:
Prezzo € 425.000


Efficienza energetica:
Classe energetica: C
Riscaldamento: autonomo