home page > Annunci immobiliari in Italia > Veneto > Belluno > Arsiè > Case e ville a schiera in vendita > Scheda immobile

Case e ville a schiera in vendita a Arsiè

COMPILA IL MODULO SOTTOSTANTE PER RICEVERE MAGGIORI INFORMAZIONI







Invia la richiesta ad altre agenzie
Accetto il trattamento dei miei dati



Asteaffari.com

Viale g. E l. Olivi 38
31100 Treviso

04221781118    Riferimenti: Stefano Dalto

Arsiè
Prezzo: € 16.850
F
2
1
80
1



Descrizione:
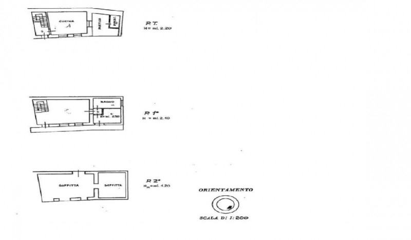
Rif. A.q. 22-25vendita all'asta - abitazione in linea in data 9 giugno 2026 descrizione: trattasi di porzione immobiliare che si trova lontano dal centro cittadino , in posizione dominante il paese sulcrinale a ovest del monte 'col della spina', località colombera sulla via novegno . Si sviluppa su n. 3 pianicomplessivi:1) piano terreno: è presente un ingresso con scala, un soggiorno con angolo cottura , un portico e un piccolo locale di sgombero;2) primo piano: vi si trovano n. 2 camere e un bagno ;3) piano soffitta con due locali . l'altezza dei locali varia dai ml. 2,20 al p.t. , mt. 2,10 p.1 e mt 1,20 soffitta .il complesso è stato realizzato con sistema edilizio tradizionale con struttura portante in muratura, solai inlegno e paramenti in laterizi forati.l'immobile viene venduto tramite asta giudiziaria, ed il prezzo indicato si riferisce al prezzo minimo accettato per la partecipazione all'asta.aste-affari fornisce un servizio di assistenza e consulenza tecnica, legale, fiscale e finanziaria su acquisti all'asta e affari immobiliari, al fine di rendere più facile e sicuro l'acquisto di un immobile proveniente dal mercato giudiziario oppure da occasioni presenti sul mercato immobiliare.analisi di fattibilità, tecnica, burocratica, finanziaria, legale, esame problematiche e vincoli, conteggio costi accessori ed occulti, assistenza in tutte le fasi della procedura fino alla consegna delle chiavi dell'immobile.l'acquisto può essere finanziato tramite mutuo, e, ove possibile anche in pre-asta tramite procedura di saldo-stralcio.prezzo minimo base asta : da euro 16.850,00per info aggiuntive, prenotazione visione, consulenza ed assistenza su asta :studio di consulenza : 'aste-affari.com'info: un debitore ? chiamaci ! abbiamo soluzioni personalizzate anche per te.




Caratteristiche immobile:
Codice inserzione: 1776653199
Rif. Annuncio: A.Q. 22-25
Provincia: Belluno
Comune: Arsiè
Superficie (Mq) : 80 Mq.
Tipo immobile: Case e ville a schiera
Stato immobile: usato
Anno costruzione/ristrutturazione: 1967
Camere: 2
Posti auto scoperti: 1 posto auto
Bagni: 1
Terrazze: 1

Costi:
Prezzo € 16.850


Efficienza energetica:
Classe energetica: F
Riscaldamento: autonomo