home page > Annunci immobiliari in Italia > Veneto > Belluno > Borca di Cadore > Case e ville indipendenti in vendita > Scheda immobile

Case e ville indipendenti in vendita a Borca di Cadore

COMPILA IL MODULO SOTTOSTANTE PER RICEVERE MAGGIORI INFORMAZIONI







Invia la richiesta ad altre agenzie
Accetto il trattamento dei miei dati



Asteaffari.com

Viale g. E l. Olivi 38
31100 Treviso

04221781118    Riferimenti: Stefano Dalto

Borca di Cadore
Prezzo: € 319.474
E
3
3
148
1
1



Descrizione:
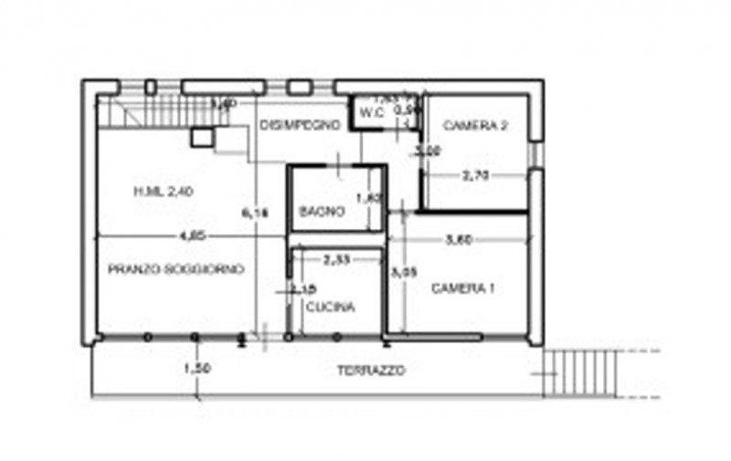
Rif. A.a.72-23vendita all'asta - abitazione su 2 livelli in data 10 marzo 2026descrizione: trattasi di una villetta unifamiliare inserita nel complesso immobiliare denominato 'villaggio corte ex eni', sviluppata su due piani e composta al piano terra da grande ingresso con ripostiglio, due vani uso soggiorno e camera, un bagno, e al primo piano ampio soggiorno, cucina, 2 bagni, due camere, ampio terrazzo vesso sud; superficie commerciale complessiva mq.148.l'immobile viene venduto tramite asta giudiziaria, ed il prezzo indicato si riferisce al prezzo minimo accettato per la partecipazione all'asta.aste-affari fornisce un servizio di assistenza e consulenza tecnica, legale, fiscale e finanziaria su acquisti all'asta e affari immobiliari, al fine di rendere più facile e sicuro l'acquisto di un immobile proveniente dal mercato giudiziario oppure da occasioni presenti sul mercato immobiliare.analisi di fattibilità, tecnica, burocratica, finanziaria, legale, esame problematiche e vincoli, conteggio costi accessori ed occulti, assistenza in tutte le fasi della procedura fino alla consegna delle chiavi dell'immobile.l'acquisto può essere finanziato tramite mutuo, e, ove possibile anche in pre-asta tramite procedura di saldo-stralcio. prezzo minimo base asta : da euro 319.474,00 per info aggiuntive, prenotazione visione, consulenza ed assistenza su asta : studio di consulenza : 'aste-affari.com'info: un debitore ? chiamaci ! abbiamo soluzioni personalizzate anche per te.




Caratteristiche immobile:
Codice inserzione: 1764820669
Rif. Annuncio: A.A. 72-23
Provincia: Belluno
Comune: Borca di Cadore
Superficie (Mq) : 148 Mq.
Tipo immobile: Case e ville indipendenti
Stato immobile: usato
Anno costruzione/ristrutturazione: 2011
Piano: 1
Camere: 3
Arredato:
Posti auto scoperti: 1 posto auto
Bagni: 3
Terrazze: 1

Costi:
Prezzo € 319.474


Efficienza energetica:
Classe energetica: E
Riscaldamento: autonomo