Modifica ricerca
Vendita - Affitto
Provincia:
Comune:
Tipologia:
Prezzo:
Numero camere:

 Cerca in vendita anche

Immobili in vendita a Valle di Cadore

 Cerca in affitto anche

Immobili in affitto a Valle di Cadore

Annunci immobiliari di vendita e affitto a Valle di Cadore

  Ultimi 30 annunci immobiliari inseriti nel comune di Valle di Cadore
Valle di Cadore (BL)    |    € 71.625    |    173 Mq    |    Rif. ST12379

 8

Vendita case e ville indipendenti
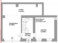
Terratetto all'asta in via monte rite, valle di cadore (bl)si propone il diritto di piena proprietà di un'unità immobiliare ad uso residenziale sita in via monte rite n 5, nel comune di valle di cadore (bl). Nello specifico si tratta di un terratetto elevato su più piani, composto cosù:piano terra:- locale deposito, - autorimessa, - cantinapiano primo: - zona giorno, - cucina, - servizio igienico piano secondo: - due camere da letto, - secondo servizio igienico; piano sottotetto: - uso soffitta.la superficie commerci...
Visualizza i dettagli >>


Valle di Cadore (BL)    |    € 71.625    |    148 Mq    |    Rif. A.A. 51-23

 8

Vendita case e ville indipendenti
Rif. A.a.51-23vendita all'asta - abitazione unifamiliare su 3 livelli in data 12 maggio 2026descrizione: trattasi di un'abitazione unifamiliare sviluppata su più piani, da terra a cielo, fronte strada con garage e corte scoperta, sita nel comune di valle di cadore (bl) località venas; il piano terra vi è un locale deposito, autorimessa, cantina; al piano primo vi è la zona giorno, cucina, servizio igienico, al piano secondo vi sono due camere da letto di cui una allo stato semi-grezzo, secondo servizio igienico; sott...
Visualizza i dettagli >>


Valle di Cadore (BL)    |    € 130.000    |    303 Mq    |    Rif. 056

 16

Vendita case e ville indipendenti
In posizione tranquilla, soleggiata e immersa nella bellezza delle dolomiti, proponiamo in vendita una porzione di casa da ristrutturare situata nella caratteristica frazione di venas di cadore.l'immobile, un ex fabbricato rurale a destinazione residenziale, conserva il fascino autentico della tradizione alpina e si sviluppa su tre livelli. Al suo interno troviamo cinque camere da letto, una cucina, un bagno e numerosi altri ambienti ampi e versatili, ideali da ridistribuire e personalizzare secondo le proprie esigenze abitative.il fabbricato &...
Visualizza i dettagli >>


Valle di Cadore (BL)    |    € 230.000    |    380 Mq    |    Rif. 041

 16

Vendita appartamento
Proponiamo in vendita una spaziosa porzione di stabile situata nella suggestiva frazione di venas, nel comune di valle di cadore, a pochi minuti dalla rinomata cortina d'ampezzo. L'immobile si trova in una posizione strategica, facilmente accessibile, ed è immerso in un contesto alpino di grande fascino. Grazie alla sua struttura e alla distribuzione degli spazi, l'edificio offre numerose possibilità di utilizzo e personalizzazione, rendendolo una soluzione versatile per molteplici esigenze.il piano terra è dotato di un gar...
Visualizza i dettagli >>


Valle di Cadore (BL)    |    € 250.000    |    80 Mq    |    Rif. 032

 16

Vendita appartamento
Vendiamo grazioso e accogliente appartamento situato nella frazione di venas di cadore a soli 20 minuti dal centro dolomitico di cortina d'ampezzo. L'appartamento si trova in un contesto molto tranquillo e panoramico, immerso nella natura.le ampie finestre consentono una splendida vista sul paesaggio circostante e garantiscono un'abbondante illuminazione naturale in tutte le stanze.gli alloggi sono di recente costruzione, e sono dotati anche di due box auto personali più una cantina.l'unità è dotata da un'ampia cucina soggi...
Visualizza i dettagli >>