home page > Annunci immobiliari in Italia > Veneto > Padova > Albignasego > appartamenti in vendita > Scheda immobile

Appartamento in vendita a Albignasego

COMPILA IL MODULO SOTTOSTANTE PER RICEVERE MAGGIORI INFORMAZIONI







Invia la richiesta ad altre agenzie
Accetto il trattamento dei miei dati



Sz affari immobiliari srl unipersonale

Via piovese 251
35121 Padova

049750812    Riferimenti: Simone Zancanaro

Albignasego
Prezzo: € 247.000
A4
2
2
99
1



Descrizione:
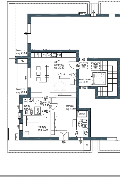
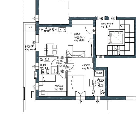
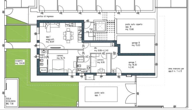
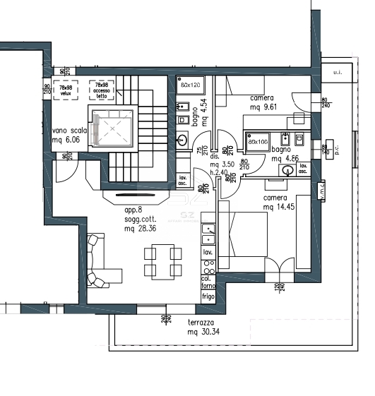
San giacomo - albignasegoin fase di realizzo, palazzina che ospita poche unità abitative, situata in ottima posizione dove si possono raggiungere facilmente tutti i servizi offerti dalla zona.fabbricato concepito con tecniche rivolte al risparmio energetico e al comfort interno, efficienza termica in estate e inverno, qualità dell'abitare attraverso le murature portanti realizzate con blocchi cassero in legno-cemento, il riscaldamento a pavimento, impianto di aria condizionata canalizzata e un impianto fotovoltaico dedicato per ogni unità.ogni unità avrà a disposizione un garage al piano terra con accesso diretto nel vano scala e un posto auto dedicato.- unità 1 con ingresso indipendente; al piano terra giardino esclusivo di 130 mq: soggiorno con cucina a vista, 2 camere, 2 bagni, disimpegno.euro 279.000- unità 4 appartamento al primo piano: soggiorno con cucina a vista, 2 camere, 2 bagni finestrati, ampio poggiolo, disimpegno.euro 247.000- unità 7 appartamento al secondo piano con terrazza abitabile: soggiorno con cucina a vista, disimpegno, 2 camere, 2 bagni.euro 273.000- unità 8 appartamento al secondo piano con terrazza abitabile: ingresso, soggiorno con cucina a vista, 2 camere, 2 bagni finestrati, disimpegno.euro 276.000l'inizio dei lavori è previsto per inizio 2026 e la consegna prevista per novembre 2026.contattaci per scoprire di più e prenotare la tua visita!classe energetica 'a4'prezzo a partire da euro 247.000,00rif. 1495-asg




Caratteristiche immobile:
Codice inserzione: 1763524427
Rif. Annuncio: 1495-ASG
Provincia: Padova
Comune: Albignasego
Zona: San Giacomo  
Tipo immobile: Appartamento
Stato immobile: nuovo
Anno costruzione/ristrutturazione: 2026
Piano: Ultimo piano
Camere: 2
Garage: Singolo
Posti auto scoperti: 1 posto auto
Bagni: 2
Terrazze: 1

Costi:
Prezzo € 247.000


Efficienza energetica:
Classe energetica: A4
Riscaldamento: autonomo a pavimento