home page > Annunci immobiliari in Italia > Veneto > Padova > Albignasego > appartamenti in vendita > Scheda immobile

Appartamento in vendita a Albignasego

COMPILA IL MODULO SOTTOSTANTE PER RICEVERE MAGGIORI INFORMAZIONI







Invia la richiesta ad altre agenzie
Accetto il trattamento dei miei dati



Sz affari immobiliari srl unipersonale

Via piovese 251
35121 Padova

049750812    Riferimenti: Simone Zancanaro

Albignasego
Prezzo: € 350.000
A4
3
2
145
98
1



Descrizione:
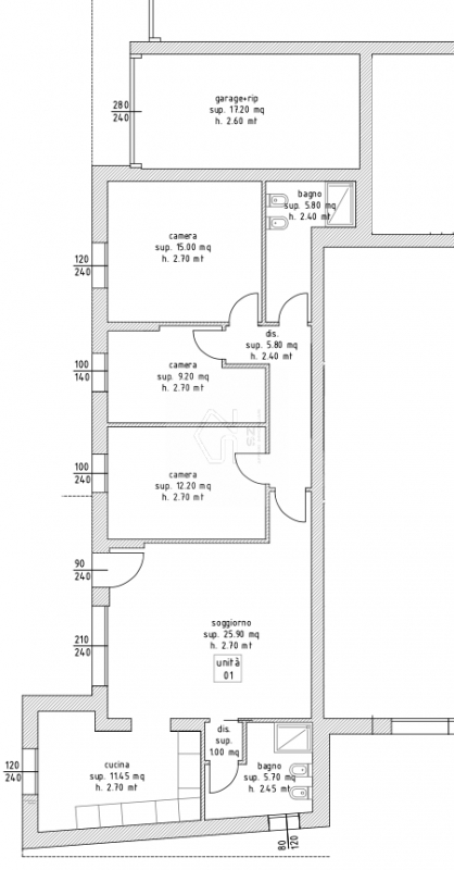
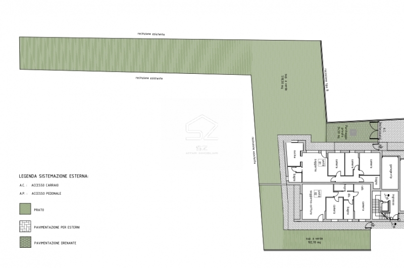
Albignasego-ferri nuova costruzione appartamento con ingresso indipendente, 3 camere e finiture di pregio.inserito tra il rinomato quartiere dei ferri e quello di san tommaso, in contesto elegante e riservato, proponiamo in vendita un appartamento al piano terra all'interno di una palazzina esclusiva di sole 7 unità abitative.gli spazi interni ed esterni sono stati studiati nei minimi dettagli per garantire massimo comfort abitativo, efficienza e qualità. Ogni unità è dotata delle tecnologie più avanzate per il risparmio energetico, con finiture interne di altissimo livello personalizzabili.️ composizione: ingresso pedonale indipendente soggiorno cucina separata 3 camere da letto 2 bagni giardino di circa mq 500 garage e posto auto internopossibilità per chi acquista di accedere al sisma bonus che permette una detrazione fiscale di euro 48.000!consegna prevista: dicembre 2025classe 'a4'euro 350,000rif. 1767-p1




Caratteristiche immobile:
Codice inserzione: 1759373274
Rif. Annuncio: 1767-P1
Provincia: Padova
Comune: Albignasego
Zona: Ferri (Santa Maria Annunziata)  
Superficie (Mq) : 145 Mq.
Tipo immobile: Appartamento
Stato immobile: nuovo
Anno costruzione/ristrutturazione: 2025
Piano: Piano terra
Camere: 3
Garage: Singolo
Posti auto scoperti: 1 posto auto
Bagni: 2

Costi:
Prezzo € 350.000


Efficienza energetica:
Classe energetica: A4
Riscaldamento: autonomo a pavimento