Descrizione:
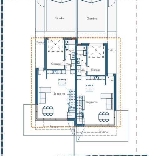
Bivilla di nuova costruzione quartiere park side 'prestige' cadoneghenel nuovo ed elegante quartiere residenziale park side, in zona centrale a cadoneghe e comoda a tutti i servizi, proponiamo in vendita prestigiose biville di nuova costruzione inserite nella ricercata zona 'prestige' del quartiere.le abitazioni si sviluppano su due livelli e sono circondate da circa 200 mq di giardino privato, garantendo privacy e vivibilità degli spazi esterni.le soluzioni si compongono di ampio ingresso che conduce alla straordinaria zona giorno di oltre 50 mq, caratterizzata da ampie vetrate che offrono una vista esclusiva sul verde e garantiscono grande luminosità agli ambienti. La zona living è inoltre servita da ampi portici esterni, ideali per momenti di relax o convivialità. Completa il piano terra bagno con antibagno.al piano superiore troviamo la zona notte composta da tre camere da letto di generose dimensioni, di cui due matrimoniali (una delle quali con bagno privato in suite) e una camera doppia, oltre ad un ulteriore bagno a servizio delle altre camere.un suggestivo terrazzo con ballatoio affacciato sulla zona giorno, caratterizzata da soffitto alto fino a 6 metri, dona un impatto architettonico moderno e garantisce una luminosità naturale unica sia al soggiorno sia alla zona notte.completano la proprietà garage e posti auto interni.le abitazioni sono realizzate con elevati standard costruttivi e complete di tutti i principali optional tecnologici:* vmc (ventilazione meccanica controllata)* impianto di climatizzazione* impianto di allarme* domotica* impianto fotovoltaicoil contesto è particolarmente esclusivo: via privata, quartiere di nuova realizzazione circondato da soluzioni semi-indipendenti e ampi spazi verdi, ideale per chi cerca tranquillità e qualità abitativa.le abitazioni sono attualmente in fase di realizzazione, con possibilità di prenotazione e personalizzazione delle finiture.prezzo euro: 490.000,00