home page > Annunci immobiliari in Italia > Veneto > Padova > Campodarsego > Case e ville indipendenti in vendita > Scheda immobile

Case e ville indipendenti in vendita a Campodarsego

COMPILA IL MODULO SOTTOSTANTE PER RICEVERE MAGGIORI INFORMAZIONI







Invia la richiesta ad altre agenzie
Accetto il trattamento dei miei dati



Tecnopol di polcan tomas

Via g. Marconi 9/d
35010 Cadoneghe (PD)

0498871178    Riferimenti: Tomas Polcan

Campodarsego
Prezzo: info in agenzia
A4
3
2
170
Piano terra
1



Descrizione:
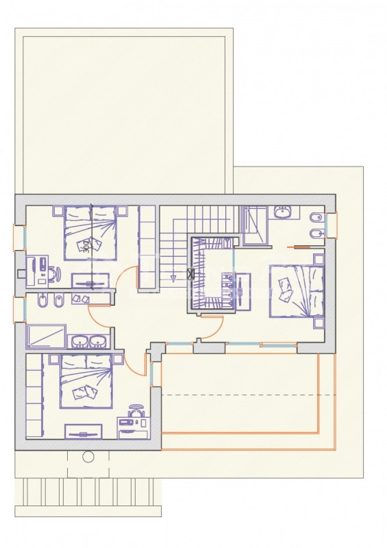
Campodarsego - il mercato non ti offre la casa giusta per le tue esigenze? possiamo progettarla e costruirla in base alle tue necessità ed il tuo budget.in contesto centrale e prestigioso disponibili ultimi lotti su cui poter sviluppare la casa dei tuoi sogni: desideri una villetta singola su un piano con garage doppio o servono spazi più importanti ed è meglio svilupparla su due livelli per creare quella stanza in più o quello spazio che serve alla famiglia o alla propria attività.le planimetrie pubblicate si riferiscono ad un esempio di casa che è possibile realizzare, ma sono molte le possibilità sia più piccola che più grande!chiama l'agenzia immobiliare tecnopol al e chiedi di tomas che ti illustrerà da dove iniziare per realizzare la casa su misura per te.per questioni di privacy il posizionamento su mappa e' casuale e non corrisponde a quello indicatoper comprare devi anche vendere casa? nessun problema, ci occupiamo di tutto noi!




Caratteristiche immobile:
Codice inserzione: 1759718220
Rif. Annuncio: 4637439
Provincia: Padova
Comune: Campodarsego
Superficie (Mq) : 170 Mq.
Tipo immobile: Case e ville indipendenti
Stato immobile: nuovo
Piano: Piano terra
Camere: 3
Garage: Doppio
Posti auto scoperti: 1 posto auto
Bagni: 2

Costi:
Prezzo info in agenzia


Efficienza energetica:
Classe energetica: A4
Riscaldamento: autonomo a pavimento