home page > Annunci immobiliari in Italia > Veneto > Padova > Campodarsego > Case e ville indipendenti in vendita > Scheda immobile

Case e ville indipendenti in vendita a Campodarsego

COMPILA IL MODULO SOTTOSTANTE PER RICEVERE MAGGIORI INFORMAZIONI







Invia la richiesta ad altre agenzie
Accetto il trattamento dei miei dati



Consulta domu

Via vittorio emanuele orlando 09
35121 Padova

3792130851    Riferimenti: Emanuele Zampieri

Campodarsego
Prezzo: € 180.000
E
3
1
1



Descrizione:
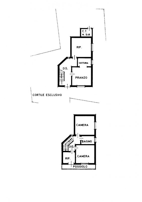
L'immobile si distingue per le sue ampie metrature interne, offrendo una soluzione ideale per famiglie o chi desidera avere uno studio personale. La disposizione degli spazi interni è funzionale ed accogliente, con al piano terra il soggiorno luminoso separato dalla cucina abitabile perfetta per cene in famiglia o intrattenimenti con gli amici. Nella zona notte due camere matrimoniali dalle metrature generose e ben illuminate, il bagno finestrato con doccia e un ripostiglio finestrato che volendo potrebbe essere usato come terza cameretta singola.il giardino privato circonda la proprietà, creando un'oasi verde dove poter godere del sole durante l'estate o organizzare feste all'aperto. L'area esterna offre anche possibilità di parcheggio comodo.a completamento della soluzione il garage.situata in una posizione strategica a pochi minuti dai principali servizi come scuole, negozi e mezzi pubblici, questa casa permette di vivere serenamente pur rimanendo vicini alle comodità della vita quotidiana. La zona residenziale è caratterizzata da un'atmosfera familiare e sicura.




Caratteristiche immobile:
Codice inserzione: 1765165992
Rif. Annuncio: 603-AC
Provincia: Padova
Comune: Campodarsego
Zona: Reschigliano  
Tipo immobile: Case e ville indipendenti
Stato immobile: usato
Piano: 1
Camere: 3
Garage: Singolo
Bagni: 1

Costi:
Prezzo € 180.000


Efficienza energetica:
Classe energetica: E
Riscaldamento: autonomo