home page > Annunci immobiliari in Italia > Veneto > Padova > Campodarsego > Case e ville indipendenti in vendita > Scheda immobile

Case e ville indipendenti in vendita a Campodarsego

COMPILA IL MODULO SOTTOSTANTE PER RICEVERE MAGGIORI INFORMAZIONI







Invia la richiesta ad altre agenzie
Accetto il trattamento dei miei dati



Consulta domu srl

Via vittorio emanuele orlando 09
35121 Padova

3792130851    Riferimenti: Emanuele Zampieri

Campodarsego
Prezzo: € 298.000
D
4
3
250
1



Descrizione:
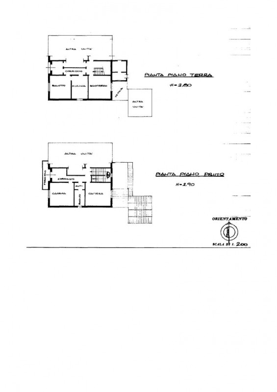
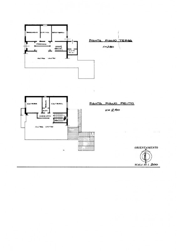
Reschigliano centralissimi, servitissima abitazione completamente indipendente.per chi desidera ampi spazi, famiglie numerose, genitori/figli o l'opportunità unica di un vantaggioso acquisto.abitazione composta da 2 appartamenti di 150 mq. L'uno, attualmente utilizzati come duplex, è possibile predisporre una totale divisione.completamente manutentati nel corso degli anni, si vendono ammobiliati da subito senza la necessità di alcun lavoro.prezzo e ulteriori informazioni su richiesta. Contattaci per organizzare una visita!




Caratteristiche immobile:
Codice inserzione: 1775443598
Rif. Annuncio: 604-CC
Provincia: Padova
Comune: Campodarsego
Superficie (Mq) : 250 Mq.
Tipo immobile: Case e ville indipendenti
Piano: 1
Camere: 4
Garage: Doppio
Bagni: 3
Terrazze: 2

Costi:
Prezzo € 298.000


Efficienza energetica:
Classe energetica: D
Riscaldamento: autonomo