042950199 Riferimenti: Monica Cogo
Descrizione:
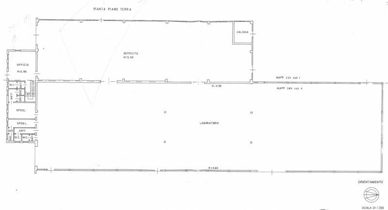
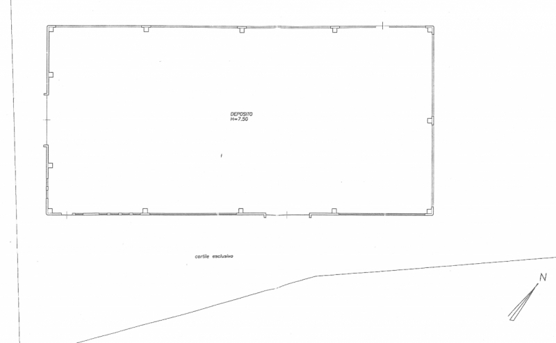
Rif. Caf01 - affittasi complesso industriale composto da capannone principale di 1.970 mq, suddiviso in due unità rispettivamente di 1.400 mq e 570 mq, uffici di cca 230 mq, oltre a ulteriore capannone indipendente di circa 840 mq.gli spazi si prestano a molteplici destinazioni d'uso, tra cui attività produttive, logistiche e di deposito, garantendo elevata flessibilità operativa. La suddivisione consente un utilizzo sia unitario che separato delle superfici, adattandosi alle diverse esigenze aziendali.la conformazione degli immobili permette una razionale organizzazione degli spazi interni e una gestione efficiente delle attività, rendendo la soluzione ideale per imprese che necessitano di ampie metrature e versatilità funzionale. richiesti euro 5650 + iva mensiliattenzione: si comunica che l'indirizzo riportato nell'annuncio non corrisponde all'esatta collocazione dell'immobile, per informazioni sulla sua precisa localizzazione e per le planimetrie si prega di contattare l'agenzia.immobiliare principe casa - piazza maggiore, 20 - este (pd) oppure contattare il numero indirizzo e-mail per altri annunci visita il nostro sito
| Codice inserzione: | 1773200003 |
| Rif. Annuncio: | CAF01 |
| Provincia: | Padova |
| Comune: | Casale di Scodosia |
| Superficie (Mq) : | 2810 Mq. |
| Tipo immobile: | Negozi uffici capannoni |
| Anno costruzione/ristrutturazione: | 2001 |
| Prezzo | € 5.650 |